Architekt: Kgl. Baurath L. Heim in Berlin. Die Entwicklungs-Geschichte der heute unter dem Namen „Philharmonie“ in der gesammten feinen musikalischen Welt bekannten Saalgruppe an der Bernburger-und ander Köthener-Strasse in Berlin zeichnet ein lebhaftes Bild des musikalischen Aufschwunges und der Steigerung des Musiklebens in der deutschen Reichshauptstadt.
Dies ist ein historischer Text, welcher nicht geändert wurde, um seine Authentizität nicht zu gefährden. Bitte beachten Sie, dass z. B. technische, wissenschaftliche oder juristische Aussagen überholt sein können. Farbige Bilder sind i. d. R. Beispielbilder oder nachcolorierte Bilder, welche ursprünglich in schwarz/weiß vorlagen. Bei diesen Bildern kann nicht von einer historisch korrekten Farbechtheit ausgegangen werden. Darüber hinaus gibt der Artikel die Sprache seiner Zeit wieder, unabhängig davon, ob diese heute als politisch oder inhaltlich korrekt eingestuft würde. Lokalgeschichte.de gibt die Texte (zu denen i. d. R. auch die Bildunterschriften gehören) unverändert wieder. Das bedeutet jedoch nicht, dass die darin erklärten Aussagen oder Ausdruckweisen von Lokalgeschichte.de inhaltlich geteilt werden.
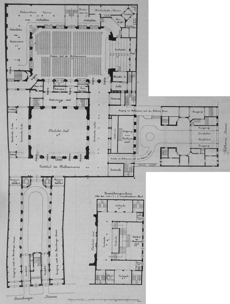
In den siebziger Jahren standen auf dem Grundstück Bernburgerstrasse 22 a und 23 zwei alte Vorderhäuser mit anstossenden Seitenflügeln, die Miethszwecken der geläufigen Art dienstbar waren. Auf dem ausgedehnten Hinterlande aber erhob sich eine in einem einfachen Saale eingerichtete Rollschuhbahn, die jedoch in geschäftlicher Hinsicht so wenig ergiebig war, dass sie bald in ein einfaches Konzertlokal mit Garten umgewandelt wurde. Hier fanden die philharmonischen Konzerte statt und von hier aus entwickelte sich jenes reiche Musikleben, welches den Ruf Berlins als einer der ersten europäischen Musikstädte weithin begründet hat. Dazu trugen die Besitzer jenes unscheinbaren Saales, die Hrn. L. Sacerdoti und S. Landecker, durch ihre kühne Unternehmungslust in wesentlichem Umfange bei. Im Jahre 1888 fassten sie den Entschluss, den ungenügenden alten Saal durch einen neuen Saal von etwa 35 m Länge zu 24 m Breite nach dem Entwurf von Franz Schwechten zu ersetzen (s. Jahrg. 1889 No. 72). Die alten Häuser an der Bernburgerstrasse blieben bestehen; durch sie erfolgte der Zugang zu der neuen, mit ausgiebigen Nebenräumen versehenen Anlage, die lange Jahre als die bevorzugte Stätte musikalischer Darbietungen bestand und in ihrem Haupttheile noch besteht. Die Anlage jenes Saalbaues ist aus unseren Grundrissen noch ersichtlich.
Um den Saal ziehen sich, etwas über den Saalboden erhöht, Logen und Räume für Stehplätze und Restaurationsbetrieb; die grosse Orchesternische mit Orgel, 14,8 m breit und 11 m tief, liegt nach Westen; südlich von ihr lagern die Wirthschaftsräume. Das Obergeschoss des Saalbaues besitzt den in den Saal hinausgebauten Balkon und im Anschluss an ihn eine Reihe von Sälen, welche als Neben- und Erfrischungsräume in den Pausen der Musikaufführungen benutzt werden oder aber bei grösseren Festen als Speiseräume dienen. Zu diesem Zweck enthält auch das Obergeschoss Wirthschaftsgelasse.
Jeder Musikfreund in Berlin kennt den Saal und weiss seine Gestalt, seine künstlerische Ausschmückung und namentlich seine akustischen Eigenschaften zu schätzen. Als er entstanden war, begrüsste man ihn auf das freudigste. Zur weiteren schnellen Entwicklung des musikalischen Lebens trug er viel bei und so fällt es denn nicht auf, dass man allmählich auf seine einfachen Nebenanlagen aufmerksam wurde. Von der Bernburgerstrasse aus fuhren die zu Wagen ankommenden Konzertbesucher in den Hof des alten Hauses, hielten vor, dem schmucklosen Eingangsvestibül, gelangten von hier aus in die links und rechts angeordneten, sehr geräumigen, aber nur bescheiden ausgestatteten Garderoben und von ihnen unmittelbar in den Saal. Eine Art Foyer war nicht vorhanden. Empfindlicher machten sich die bestehenden Einrichtungen für Fussgänger geltend welche nach Durchschreiten des Vorderhauses auf dem langen Wege bis zum Vestibül ohne Schutz gegen die Witterung sich befanden. Ein fernerer Mangel der Anlage, der wie auch die vorhin angeführten Mängel, auf die ursprüngliche bescheidenere Fassung des Bauprogrammes zurückzuführen ist, ergab sich, wenn der grosse Saal nicht allein zu musikalischen Aufführungen, sondern auch zu Festlichkeiten aller Art benutzt wurde. Dann fiel der Mangel genügender Nebenräume im Erdgeschoss empfindlich auf und der Saalbau der Philharmonie trat in dieser Beziehung gegen andere Saalanlagen Berlins zurück.
Allen diesen Mängeln abzuhelfen und zugleich dem musikalischen Leben Berlins und anderen verwandten Veranstaltungen erweiterte räumliche Anlagen darzubieten, bildete im Jahre 1898 den unternehmenden Entschluss der Besitzer. Ihn zu verwirklichen, traten sie mit dem Architekten und. kgl. Baurath L. Heim in Verbindung, welcher, unterstützt durch die thatkräftige und feinsinnige künstlerische und technische Mitarbeit des Hrn. Architekten R. Wirth, die heutige Baugruppe geschaffen hat, von welcher man, ohne Widerspruch zu befürchten, sagen darf, dass sie in jeder Beziehung den an sie gestellten hohen Anforderungen entspricht.
Der Entschluss der Besitzer der Philharmonie war zunächst darauf gerichtet, einen zweiten grösseren Saal, den jetzigen Oberlichtsaal, zu schaffen, welcher mit dem bestehenden Konzertsaal in unmittelbare Verbindung gebracht werden sollte. Im Verlaufe der baupolizeilichen Erwägungen aber stellte es sich heraus, dass es nicht möglich war, auf dem bestehenden Gelände den möglichen grösseren Menschenansammlungen insbesondere bei drohender Gefahr die nöthigen Ausgänge zu schaffen. Die Besitzer entschlossen sich daher, das an das Hinterland der Bernburgerstrasse im rechten Winkel anstossende Grundstück Köthenerstrasse 32 zu erwerben und gewannen hierdurch nicht nur die Möglichkeit, der persönlichen Sicherheit der Konzertbesucher in ausreichendem Maasse Rechnung zu tragen, sondern es liess sich auch eine Erweiterung der gesammten Anlagen durch einen selbständigen Saalbau, den Beethovensaal, gewinnen. Das alte Vorderhaus der Köthenerstrasse wurde erhalten und nur mit den entsprechenden Durchbrüchen für den Fussgänger- und den Wagenverkehr versehen, das alte Vorderhaus der Bernburgerstrasse aber niedergelegt; hier wurde zunächst ein grosser Vorhof für die Ein- und Ausfahrt der Wagen geschaffen. Rechts und links davon sind lange Kolonnaden angelegt, nach welchen nicht nur das Ein- und Aussteigen aus dem Wagen bequem erfolgen kann, sondern durch welche die Besucher auch vor der Witterung geschützt von der Strasse bis zu den den Oberlichtsaal umziehenden Vestibülen gelangen können, um hier ihre Garderobe abzulegen. In seinen oberen Geschossen – das untere ist durchaus in Verkehrsräume aufgelöst – enthält das neue Vorderhaus herrschaftliche Wohnungen.
Aus dem Grundriss des Erdgeschosses sind die Lageverhältnisse der gesammten Anlage, wie sie sich nach den umfangreichen Neu- und Umbauten ergeben haben, klar zu ersehen. Sie bilden drei Raumgruppen: den alten Saal auf dem hintersten Theile des Grundstückes, von den Nebenräumen umgeben; den Oberlichtsaal im mittleren Theile, umgeben von den geräumigen Garderoben, dem Vestibül und dem Verbindungssaal mit dem alten Saal; und drittens die für sich bestehende Gruppe des Beethovensaales mit dem Zugang von der Köthenerstrasse. Das Verhältniss des alten „grossen Saales“ zu dem neuen Oberlichtsaale ist so geregelt, dass beide Säle nebst allem Zubehör im Zusammenhang benutzt werden können, dass aber auch jeder einzelne Saal mit den entsprechenden Nebenräumen einem besonderen Zwecke dienen kann. Die Raumverhältnisse der neuen Saalbauten zu einander und zum alten Saale, sowie zu dem neuen Vorderhause der Bernburgerstrasse sind in den Durchschnitten zur Darstellung gebracht. In unserem Schlussaufsatze werden wir der Beschreibung der beiden neuen Säle, des Oberlichtsaales und des Beethoven-Saales, näher treten. Sie sind der Hauptgewinn der Anlage sowohl in räumlicher wie in künstlerischer Beziehung. (Schluss folgt.)
Berliner Neubauten 91 – Die Erweiterungsbauten der Philharmonie, Bernburgerstrasse 22 a u. 23, und Köthenerstrasse 32.
Architekt: Kgl. Baurath L. Heim in Berlin. Der Oberlichtsaal, von welchem wir eine Abbildung nach seinem Zustande vor Ausführung der dekorativen Malereien gegeben haben, reicht mit einer Höhe von 13,3 m durch zwei Geschosse. Unter ihm ist ein Tunnel für Restaurationszwecke angelegt, der durch zwei Treppen zugänglich ist und zu dessen Seiten sich Wirthschaftsräume befinden. Seine Architektur ist die einer feingegliederten hellenisirenden Hochrenaissance; der den räumlichen Verhältnissen entsprechende Grundzug der zweigeschossigen Gliederung hat dem Saal eine grossräumige Wirkung verliehen. Beleuchtet wird er durch das den Flächenraum fast der ganzen Decke einnehmende Oberlicht, durch welches am Tage das Tageslicht, am Abend das elektrische Bogenlicht von 16 Hrabowski-Reflektoren scheint. Diese Anordnung der Lichtquelle über dem Oberlicht hat den zweifachen Vortheil der Erreichung einer dem Tageslicht möglichst nahekommenden diffusen künstlichen Beleuchtung und der Beseitigung der Kugeln der Bogenlampen aus dem Raume selbst. Das ist umso mehr ein künstlerischer Gewinn, als alle Versuche, die Bogenlampe künstlerisch zu meistern, bisher einen Erfolg nicht gehabt haben. Und dass sie in einer geschlossenen Architektur ein unkünstlerisches Element bilden, ist eine Empfindung, die kaum bestritten werden kann. Im I. Obergeschoss liegt zwischen dem alten und dem Oberlichtsaal der sogenannte „Weisse Saal“, ein Raum von kleineren Abmessungen, der entweder mit dem Oberlichtsaal zusammen oder für sich abgetrennt für kleine Kammermusik-Aufführungen benutzt werden kann. Er empfängt sein Tageslicht vom Oberlichtsaal. An der Ostseite des Oberlichtsaales liegen die Verwaltungsräume, an seiner Nordseite ein Uebungssaal mit Garderobe für ein privates Konservatorium für Musik.
Den Haupttheil der neuen Anlage bildet die glanzvolle Baugruppe des Beethovensaales. Durch das Haus Köthenerstrasse 32 durch Vorfahrten und Fussgängerwege zugänglich, öffnet sich dem Besucher mit 6 Thüren das etwas erhöht gelegene Vestibül. Eine zweiarmige grosse Treppenanlage mit reichem Marmorbelag führt in das Zwischengeschoss, welches die geräumigen Garderoben enthält. Ueber ihm liegt der Saal, zu welchem die in den vier Ecken der Gruppe angeordneten Treppen führen. Diese Anordnung auf beschränktem Raume ist eine eigenartige und kommt den Verkehrsbedürfnissen in vortrefflicher Weise entgegen. Die vier Treppen münden in zwei an der Längsseite des Saales unter den Gallerien entlang ziehende Passagen, auf welche sich die zahlreichen Saalthüren öffnen. Dadurch ist zwar die Anlage von Parterrelogen nicht möglich geworden, aber es ist durch die Anordnung der weit grössere Vortheil erreicht,dass das geräuschvolle Gehen zu den Sitzen im Saale selbst auf die kürzesten Entfernungen beschränkt ist, eine wohldurchdachte und ausgezeichnet bewährte Anordnung.
Die Grösse des Saales misst innerhalb der Umfassungsmauern des I. Ranges 20:26 m an die Länge von 26 m schliessen sich einerseits die Orchesternische und ihr gegenüber eine entsprechende Nische mit Sitzplätzen, beide etwa 12 m breit und 6 m tief, an.
Die Höhe des Saales beträgt 12,8 m; in seinem oberen Theil hat derselbe eine Gliederung durch freistehende Säulen erhalten, wodurch im I. Rang eine Art dreischiffiger Anlage entstanden ist. Vor die Säulen schiebt sich der Balkon mit seinen Sitzplätzen in den Raum vor. Die Summe der Sitzplätze von Parkett und Rang beträgt 1066 und kommt etwa der Zahl der Sitzplätze in der Singakademie gleich.
Wenn auch der Beethovensaal mit seinen Nebenräumen eine Saalgruppe ist, die in sich geschlossen benutzt werden kann, so ist bei der Plangestaltung doch auch wieder auf eine Benutzung im Zusammenhang mit anderen Raumgruppen Bedacht genommen. Zu diesem Zwecke ist der Fussboden der Garderobe des Beethovensaales, also der Fussboden des Zwischengeschosses, auf die Bodenhöhe des I. Ranges des grossen alten Saales gelegt, sodass bei etwaigen Bedürfniss die Garderoben des Beethovensaales als Ranggarderoben des Hauptsaales dienen können. Ein weiterer Zusammenhang besteht zwischen Beethoven- und Weissem Saal insofern, als letzterer für ersteren das Foyer bilden kann, und als die Besucher des Weissen Saales die Garderoben des Beethovensaales zu benutzen in der Lage sind. So ist die vielseitigste Verwendung der Raumgruppen einzeln und im wechselseitigen Zusammenschluss ermöglicht.
Es bedarf kaum des weiteren Hinweises, dass alle Säle für Musikaufführungen begleitet sind von Chor- und Stimmzimmern, und dass auch Künstlerzimmer vorgesehen sind.
Ueber die künstlerische Ausschmückung des Beethovensaales geben unsere Bildbeilage sowie die Abbildung einen dem schönen natürlichen Eindruck leider nicht ganz entsprechenden Anhalt. Wo die Mitwirkung der Farbe und die festliche Abendbeleuchtung infrage kommen, da versagt die photographische Wiedergabe den künstlerischen Natureindruck. Blieb der alte Saal in seinem dekorativen Gesammteindruck, der nur aufgefrischt wurde, erhalten und hat der Oberlichtsaal seiner Bestimmung und Bedeutung als Vorraum gemäss eine nur zurückhaltende Ausschmückung erfahren, so ertönt im Beethovensaale das volle Orchester plastischen und farbigen Schmuckes; vom ersteren geben unsere Randleisten eine gute Vorstellung. Der Gesammteindruck ist ein ungemein festlicher, beinahe rauschender. Die durch die freistehenden korinthischen Säulen mit darüber sich schwingender Voute mit Stichkappen getragene reich gegliederte Decke hat einen besonderen Schmuck in einem die Apotheose Beethovens darstellenden Gemälde von Prof. Vital Schmitt erhalten, während die anderen reichen Malerarbeiten dieses Saales wie der Erweiterungsbauten überhaupt durch L. Sobotta ausgeführt wurden. Die unteren Saaltheile sind in tiefem Mahagonitone gehalten, während in der architektonische Gliederung das Weiss mit Vergoldung vorherrscht. Aus dem satten Rothbraun, aus dem Weiss, aus den gleissenden Golde, aus der farbigen Pracht des Deckengemäldes und der dekorativen Malereien entsteht in Zusammenklang mit den festlichen Kleidern der Konzertbesucher und der reichen Beleuchtung eine Festsymphonie von bezaubernder Wirkung. Die Saalform ist sehr glücklich, die Akustik dank der plastischen Raumgliederung und der Schaffung mittönender Resonnanzflächen für alle Arten des musikalischen Vortrages eine so vorzügliche, dass die „Allgemeine Musikzeitung“ kaum zu weit geht, wenn sie den Saal als den besten der öffentlichen Konzertsäle in Berlin bezeichnet.
Ist nun so vom architektonischen Standpunkte alles auf das Beste gelungen, so wird das hierin liegende Verdienst noch wesentlich erhöht durch die fast beispiellos kurze Dauer der Bauausführung, die von einer Konzertsaison zur anderen, das heisst vor April bis Januar, also in knapp ¾ Jahren bewältigt werden musste. Es wäre dies aber auch kaum möglich gewesen, wenn sich die Künstler bei den zahlreichen konstruktiven Schwierigkeiten nicht des erfahrenen und gewissenhaften Rathes und Beistandes des Hrn. Ing. R. Cramer, der bei den meisten der grösseren Berliner Bauten der letzten Zeit, so auch beim neuen Landtagsgebäude, den Architekten berathend zur Seite stand, erfreut hätten. Nicht zum geringeren Theil ist die grosse Schnelligkeit der Ausführung auch der Leistungsfähigkeit der Firma Held & Francke in Berlin zu danken, welche den gesammten Rohbau übernommen hatte. Die umfangreichen Putzarbeiten auf Wand und Draht führten Boswau & Knauer aus, die Tischlerarbeiten des Beethove-Saales J. C. Pfaff. Die gesammten Bildhauerarbeiten wurden durch Zeyer und Drechsler modellirt und angetragen. Die Beleuchtungskörper lieferte die Aktien-Gesellschaft Schäffer & Walcker. In ihrer erweiterten Gestalt ist die Philharmonie in Berlin in gleicher Weise der musikalische Mittelpunkt für das nordöstliche Deutschland geworden, wie das neue Gewandhaus in Leipzig der musikalische Brennpunkt für Mittel- und der Gürzenich für Nordwest-Deutschland ist.
Dieser Artikel erschien zuerst am 27. 05 & 03.06.1899 in der Deutsche Bauzeitung, er war gekennzeichnet mit „H.“.















