Architekten: Kayser & v. Groszheim, Otto March. Seit der Anlage der Kaiser Wilhelmstrasse und der Umgestaltung des Mühlendammes ist in Alt-Berlin keine bauliche Unternehmung zur Ausführung gelangt, die an Bedeutung mit der im vorigen Jahre bewirkten Verbreiterung der Rosenstrasse und der theilweisen Neubebauung des auf ihrer Nordostseite liegenden Häuserviertels sich messen könnte.
Denn wie durch diese Strassen-Verbreiterung einerseits eine sehr wesentliche Verkehrs-Verbesserung erzielt worden ist, so hat anderseits durch die Beseitigung der ehemals in jenem Viertel vorhandenen Wohnhaus-Bauten und die an ihrer Stelle erfolgte Errichtung einer Gruppe grosser Geschäftshäuser wiederum ein mächtiger Schritt in dem Umwandelungs-Vorgange sich vollzogen, der in absehbarer Zeit den historischen Kern der deutschen Hauptstadt zu einem fast ausschliesslich aus öffentlichen Gebäuden und Kaufhäusern bestehenden Stadttheil machen wird.
Dies ist ein historischer Text, welcher nicht geändert wurde, um seine Authentizität nicht zu gefährden. Bitte beachten Sie, dass z. B. technische, wissenschaftliche oder juristische Aussagen überholt sein können. Farbige Bilder sind i. d. R. Beispielbilder oder nachcolorierte Bilder, welche ursprünglich in schwarz/weiß vorlagen. Bei diesen Bildern kann nicht von einer historisch korrekten Farbechtheit ausgegangen werden. Darüber hinaus gibt der Artikel die Sprache seiner Zeit wieder, unabhängig davon, ob diese heute als politisch oder inhaltlich korrekt eingestuft würde. Lokalgeschichte.de gibt die Texte (zu denen i. d. R. auch die Bildunterschriften gehören) unverändert wieder. Das bedeutet jedoch nicht, dass die darin erklärten Aussagen oder Ausdruckweisen von Lokalgeschichte.de inhaltlich geteilt werden.
Die vom Neuen Markt nach der Neuen Friedrich-Strasse führende Rosenstrasse war im mittelalterlichen Berlin ein stilles Seitengässchen, das von seiner später nach der berüchtigten „Königsmauer“ übersiedelten Bewohnerschaft, einen, wie Nikolai sich ausdrückt, „nicht sehr rühmlichen Namen“ führte.
Ihren jetzigen, nach Nicolai „anständigeren“ Namen, der auch in manchen anderen deutschen Städten vorkommt und, wie es scheint, überall gleichen Ursprungs ist, hat die Strasse erst im 17. Jahrhundert erhalten. Es ist kulturgeschichtlich nicht uninteressant, dass zu Anfang unseres Jahrhunderts in Berlin noch 2 andere Rosengassen (im Friedrichswerder und der Stralauer Vorstadt) und 2 Rosmarien-Gassen vorhanden waren.
Zu einer Bedeutung als Verkehrsstrasse ist sie erst seit der Befestigung der Stadt durch den Grossen Kurfürsten gelangt, bei welcher die alte Mündung der Spandauer Strasse durch ein Bastion versperrt wurde, so dass das neue Spandauer Thor mit der zugehörigen Brücke über den Wallgraben um ein erhebliches Stück nach Osten verschoben werden musste. Als dann unter Friedrich dem Grossen der berlinische Theil der Festungswerke wieder beseitigt wurde, hat man es leider versäumt, die alte Verbindung der Spandauer Strasse mit der Oranienburger Strasse, deren glatter Durchführung allerdings die mittlerweile in jenem Bastion errichtete Garnison-Kirche imwege stand, wieder herzustellen und damit für das Innere der Stadt den natürlichen Ausganz nach Nordwesten zu öffnen.
Und ebenso wenig hat man in neuerer Zeit daran gedacht, das damals Versäumte nachzuholen, was vor 30 Jahren, ja vielleicht noch gelegentlich der durch die Anlage der Stadtbahn hervor gerufenen baulichen Umwälzungen wohl ohne allzu grosse Geldopfer hätte geschehen können. Erst die Steigerung des Lastwagen-Verkehrs durch die immer kräftigere Entwicklung des Berliner Grosshandels und der Betrieb des Pferdebahn-Netzes, von dem einige der wichtigsten Linien durch die bisher nur 12 m breite Rosenstrasse hatte geführt werden müssen, haben die Aufmerksamkeit der Gemeinde-Behörden auf die an dieser Stelle des Stadtplans vorhandenen Misstände gelenkt und sie zu einer Abhilfe-Maassregel gedrängt. Nach dem jetzigen Stande der Dinge konnte jedoch nicht mehr eine Oeffnung der Spandauer Strasse, sondern vorläufig nur eine Verbreiterung der Rosenstrasse in Aussicht genommen werden.
Die Ausführung des Unternehmens ist nicht durch die Stadtgemeinde selbst, sondern auf dem gleichen Wege erfolgt, der schon bei Anlage der Kaiser Wilhelm-Strasse sich bewährt hat. Es sind zu diesem Zwecke zwei im gegenseitigen Einvernehmen handelnde Bau-Gesellschaften „Rosenstrasse“ und „Neue Friedrichstrasse“ gebildet worden, welche ihrerseits die auf dem inbetracht kommenden Gelände stehenden 31 alten, zumtheil noch aus dem 17. ‚Jahrhundert stammenden Wohnhäuser erworben und nach Abtretung der zur Verbreiterung der Rosenstrasse auf 20 m und zur platzartigen Erweiterung ihrer Einmündung in die Neue Friedrichstrasse erforderlichen Flächen den Rest des Geländes nach einem einheitlichen Plane neu bebaut haben. Als Kaufpreis für jene Flächen hat die Stadt an die Gesellschaften die Summe von 1,5 Mill. M. gezahlt und ihnen überdies den Boden des schmalen (ehem. Rosmarien-)Gässchens, durch welches das Viertel bisher getheilt wurde, zur Bebauung überlassen.
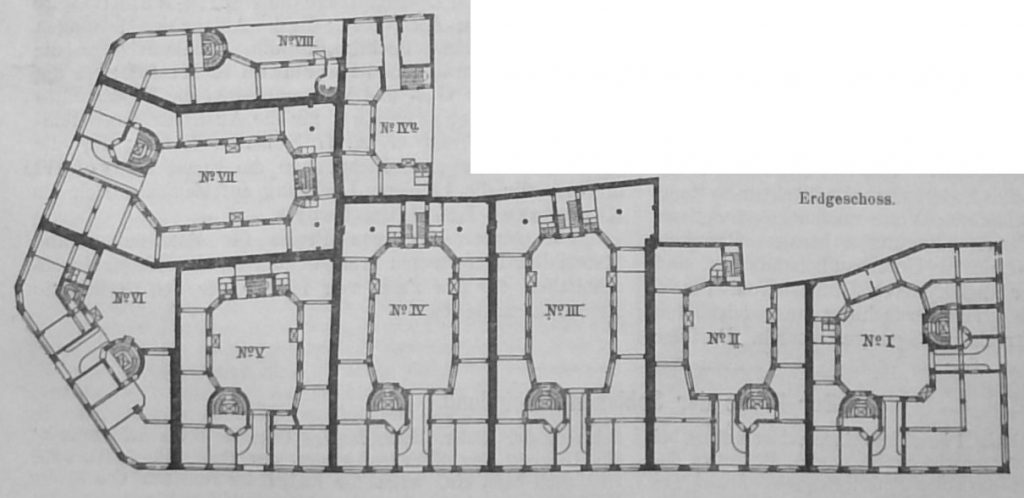
Die Herstellung der ausschliesslich zu geschäftlichen Zwecken dienenden Neubauten haben für die Gesellschaft „Rosenstrasse“ die Bauräthe Kayser & v. Groszheim, für die Gesellschaft „Neue Friedrichstrasse‘‘ Baurath Otto March übernommen. Da es Absicht war, die in denselben zu gewinnenden Räume im einzelnen zu vermiethen, so konnte ihre Einrichtung nicht den besonderen Bedürfnissen bestimmter Geschäftszweige angepasst werden, sondern hatte lediglich die allgemeinen Bedingungen eines modernen Geschäftshauses zu erfüllen, d. h. helle, übersichtliche und leicht zugängliche Räume mit möglichst langen undurchbrochenen, zum Aufstellen von Regalen geeigneten Wänden zu schaffen. Wie die beigefügten Grundrisse zeigen, ist die Gesammtfläche in 9 Einzel-Grundstücke zerlegt worden, denen in der Mehrzahl eine solche Grösse gegeben werden konnte, dass es möglich war, den baupolizeilich verlangten Hof in deren Mitte anzuordnen und die ihn umgebenden Räume in fortlaufenden Zusammenhang zu setzen. Bei 3 Grundstücken war ein solcher Zusammenhang nicht zu erreichen, da der Hof seine Stelle an der Nachbargrenze erhalten musste, während eine vortheilhafte Bebauung des an der Ecke der Neuen Friedrich- und Klosterstrasse gelegenen schmalen Grundstücks No.VIII nur durch Verlegung des Hofes an die Strasse erzielt werden konnte. Die Treppen der einzelnen Häuser sind an den Höfen so vertheilt, dass jedes der 5 Geschosse sowohl imganzen, wie in möglichst vielen (bis zu 4) einzelnen Theilen vermiethet werden kann; für die im letzten Fall erforderliche Anordnung einiger weiterer Klosets ist durch die Anlage der betreffenden Klosetstränge Vorsorge getroffen. Ausser den Treppen besitzt jedes Haus eine Anzahl elektrisch betriebener Fahrstühle, von denen die zur Personen-Beförderung bestimmten mit den Haupttreppen verbunden sind, während die zur Lastenhebung dienenden, vom Keller bis zu dem als Kistenraum benutzten Dachboden reichenden offenen Aufzüge an den Hoffronten liegen.
Die Decken sind zwischen eisernen Trägern massiv eingewölbt, der Fussboden mit Zementestrich abgeglichen und mit Linoleum belegt. Die Erwärmung der Häuser erfolgt durch Dampf-Niederdruck-Heizung; je ein Hausmeister mit 2 Gehilfen, für die eine kleine Wohnung eingerichtet ist, bedient sie und die Fahrstühle.

Stimmen Grundriss-Anordnung und Konstruktion in sämmtlichen Häusern beider Gesellschaften vollständig überein, so zeigt auch die Ausgestaltung der Fassaden, die für jede Gruppe in einheitlicher Weise erfolgt und ersichtlich von englischen und amerikanischen Vorbildern beeinflusst ist, eine nahe Verwandtschaft. Unter Verzicht auf die Anwendung irgend welches historischen Architektur-Systems sind diese Fassaden in schlichter Weise aus der konstruktiven Anordnung und den Raumbedingungen heraus entwickelt worden. Im Erdgeschoss, das als Unterbau behandelt ist, sind die Oeffnungen der hier angeordneten Kaufläden mit Flachbögen, die durch eine Giebelverdachung ausgezeichneten Hauseingänge mit scheitrechten Bögen geschlossen. Darüber erheben sich die 4 Obergeschosse im regelmässigen, nur durch einige Erker an den Ecken usw. unterbrochenen Wechsel der ohne Zwischengliederung durch alle Geschosse reichenden, unter dem Hauptgesims wiederum durch Flachbögen verbundenen Mauerpfeiler und der einheitlich zusammen gezogenen Fensteröffnungen; letztere sind im I. bis III. Obergeschoss mit flachen eisernen Erkern ausgesetzt, welche für den durch das Relief der Fassade verloren gehenden Innenraum Ersatz gewähren und gleichzeitig einen sehr günstig beleuchteten Platz zum Betrachten der Waaren darbieten. Aufbauten über den Ecken bezw. über den Eingangsaxen beleben das Gesammtbild und tragen in ihrer für beide Gruppen verschiedenen Gestaltung zur Individualisirung derselben bei. In noch höherem Grade wird dieser Zweck allerdings durch die Wahl verschiedenartiger Ziegel für die Verblendung der Fensterpfeiler befördert; während bei den Geschäftshäusern der Gesellschaft „Rosenstrasse“ hierzu hellgraue Siegersdorfer Ziegel des sogen. Doppelformats (beim Läufer von 30 m Länge und 15 m Höhe) gedient haben, sind zu den Häusern der Gesellschaft „Neue Friedrichstrasse“ rothe Verblendsteine gewöhnlicher Grösse verwendet worden. Das Erdgeschoss, das Hauptgesims und sämmtliche Ziertheile sind in hellem Hydro-Sandstein von Zeyer & Co. ausgeführt worden.
Bei der Bauausführung waren im übrigen betheiligt:
I.
Bei den Häusern der Baugesellschaft „Rosenstrasse“: für die Maurerarbeiten Hof- und Rathsmaurermeister F. Jacob; für die Zimmerarbeiten die Firmen G. A. L. Schultz & Co. und der Hofzimmermeister Alb. Krause; für die Ausführung der gusseisernen Erkervorbauten das fürstlich Stollbergische Hüttenamt zu Ilsenburg am Harz; für die Ausführung der gesammten Eisenkonstruktionen die Firma G. E. Dellschau; für die Ausführung der Personen- und Lastenaufzüge die amerikanische Aufzugbau-Gesellschaft, Generalvertreter H. von Adelson; für die Ausführung der Zentral-Heizungsanlagen die Firmen Titel & Wolde, Rietschel & Henneberg, Naruhn & Petsch; für die Ausführung der Wasseranlagen Börner & Herzberg; für die Ausführung der Kunstschmiedearbeiten Ed. Puls, P. Marcus, Fr. Spengler, Alb. Gossen; für die Ausführung der Kunststeintreppen die Firma G. A. L. Schultz & Co.
II.
Bei den Häusern der Baugesellschaft „Neue Friedrichstr.“ für die Maurerarbeiten die Firma Held & Francke, für die Zimmerarbeiten die Firma Waldmann & Co.; für die Ausführung der geschmiedeten durchgehenden Erkerfenster die Kunstschlosser Schulz & Holdefleiss; für die Anfertigung der Kunstschmiede- u. Schlosserarbeiten die Firmen Schulz & Holdefleiss, Böttcher, Hillerscheid & Kasbaum und Polzin; für die Lieferung der eisernen Träger und Stützen die Firma Chr. Schultze & Sohn Nachfolger; für die Lieferung der Personen- und Lastenaufzüge die Berlin-Anhaltische Maschinenbau-Akt.-Ges.; für die Anlage der Heizungen die Firma Kelling-Berlin; für die Tischlerarbeiten die Firmen Plagemaun und Herrmann & Mittag; für die Ausführung der Gas- und Wasserarbeiten die Firmen Otto Hoehns und Schneevoigt; für die Ausf. der Kunststein-Treppen die Firma G. A. L. Schultz & Co.; für die Ausf. der elektrischen Lichtanlage die Firma Schuckert & Co.; für die Linoleum-Lieferung auf Zementestrich die Köpenicker Linoleum-Fabrik.
Die zurzeit niedrigen Preise für Bauarbeiten und Materialien-Lieferungen ermöglichten es, die Häuser durchschnittlich für den Preis von 440 M. für den qm bebaute Fläche herzustellen.
Dieser Artikel erschien zuerst am 19.09.1896 in der Deutsche Bauzeitung.








