Das in den beigefügten Abbildungen wiedergegebene Gebäude ist im Auftrage der „Akademischen MESSE Gesellschaft vom Deutschen Hause“ von dem Berliner Architekten Ernst Jacob entworfen und unter seiner Leitung durch das Baugeschäft E. & H. Krause in Eberswalde hergestellt worden.
Mit der Ausführung des Hauses wurde im August d. J. 1892 begonnen; seine Einweihung ward beim 10 jährigen Stiftungsfest der Gesellschaft im Mai 1893 vollzogen.
Dies ist ein historischer Text, welcher nicht geändert wurde, um seine Authentizität nicht zu gefährden. Bitte beachten Sie, dass z. B. technische, wissenschaftliche oder juristische Aussagen überholt sein können. Farbige Bilder sind i. d. R. Beispielbilder oder nachcolorierte Bilder, welche ursprünglich in schwarz/weiß vorlagen. Bei diesen Bildern kann nicht von einer historisch korrekten Farbechtheit ausgegangen werden. Darüber hinaus gibt der Artikel die Sprache seiner Zeit wieder, unabhängig davon, ob diese heute als politisch oder inhaltlich korrekt eingestuft würde. Lokalgeschichte.de gibt die Texte (zu denen i. d. R. auch die Bildunterschriften gehören) unverändert wieder. Das bedeutet jedoch nicht, dass die darin erklärten Aussagen oder Ausdruckweisen von Lokalgeschichte.de inhaltlich geteilt werden.
Das Casino steht vor den Thoren der Stadt, an der Berglehne eines Ausläufers der Märkischen Schweiz, mehre Meter über der vorbeiführenden Promenade. Auf drei Seiten von einem prächtigen, hundertjährigen Buchen- und Kiefernwalde umgeben, fügt es sich mit ‚seinem malerischen Aeusseren ebenso glücklich in das anmuthige Landschaftsbild ein, wie seine durch Geweihe, Waffen und Jagdbilder sinnreich ausgeschmückten Räumen ein gemüthliches Heim für die Mitglieder der Gesellschaft darbieten.
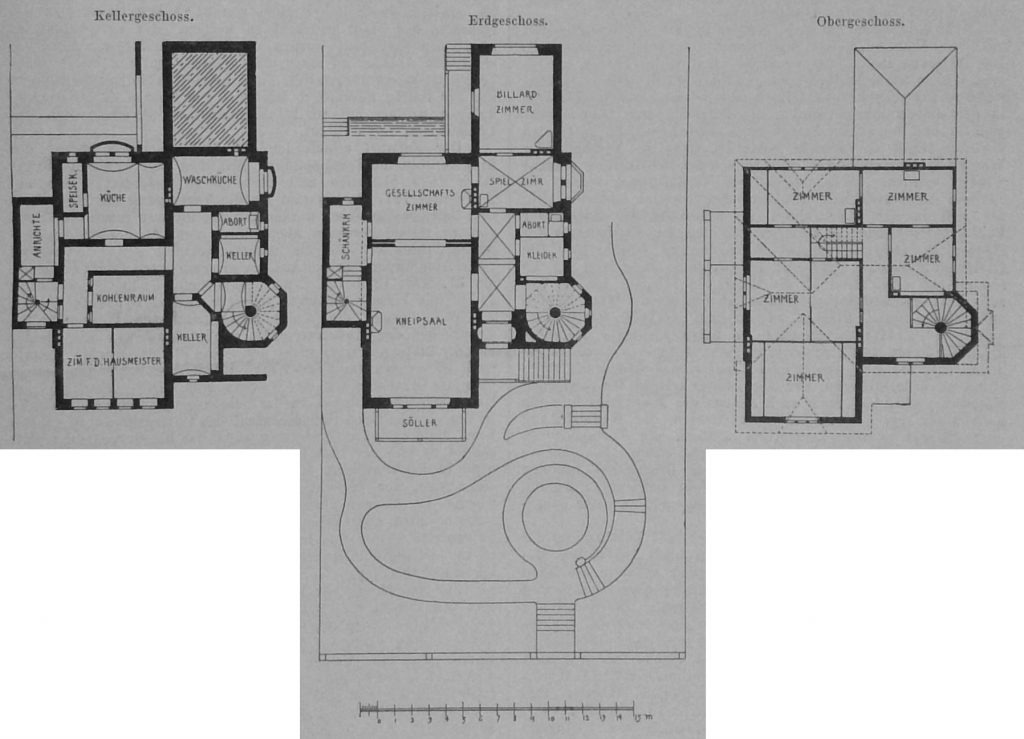
Die geringe Breite des Bauplatzes war bestimmend für die gedrängte Grundriss-Anlage, bei der das Hauptaugenmerk darauf gerichtet werden musste, dass neben den regelmässigen Zusammenkünften der Mitglieder auch grössere Feste im Casino abgehalten werden sollen. Zu diesem Zweck wurde der 5,40 m hohe Kneipsaal mit einer 3 m breiten Schiebethür versehen, die eine Vereinigung des Raumes mit dem anstossenden Gesellschaftszimmer gestattet. Die Anordnung ist im übrigen aus den mitgetheilten Grundrissen ausreichend ersichtlich. Die Zimmer im Dachgeschoss bilden einige Wohnungen für aktive Mitglieder der Gesellschaft, während der Raum oberhalb des Kneipsaals, der 1,40 m höher als die anderen Hauptgeschossräume in den Boden hineinragt, als Archiv usw. dient.
Der waldigen Umgebung des Gebäudes entsprechend ist die Aussenseite durch weisse Putzflächen über dem aus rothen Ziegeln hergestellten Sockel, dunkelbraunes Holzwerk, rothen Kunstsandstein und rothes Ziegeldach farbig reich belebt. Die beiden Hauptsäle gehören der stilistischen Behandlung nach der deutschen Renaissance in einfacher Formgebungan, während das dem Gesellschaftszimmer benachbarte Spielzimmer gothisch durchgebildet ist.
Die Baukosten beliefen sich auf rd. 32000 M. welche Summe zum grössten Theil von dem Forstreferendar Freihrn. v. Arnim und Forstassessor Anthes, sowie noch von einigen anderen alten Herren der Gesellschaft dieser zur Verfügung gestellt wurde.
Dieser Artikel erschien zuerst 1894 in der Deutschen Bauzeitung.





