An dem Wachsthum der deutschen Städte nach dem nationalen Aufschwung des Jahres 1870 nahm auch Hannover theil; vielleicht nicht in dem Maasse, wie die durch Festungsgürtel eingeschnürt gewesenen Städte, die nach der Niederlegung der ihr Wachsthum hemmenden Vertheidigungswerke in eine ungeahnte Entwicklung eintraten; auch nicht in dem Maasse, wie eine Reihe von Landeshauptstädten und Handelsstädten, die ihre Einwohnerzahl verdreifachten oder vervierfachten, aber immerhin in einem Maasse, welches sich in dem Anwachsen der Bevölkerung von etwa 80 000 Seelen im Jahre 1864, als Hannover noch Hauptstadt des Königreiches war, auf etwa 180 000 Köpfe, welche die heutige Provinzial-Hauptstadt infolge natürlicher Zunahme und Einverleibung mehrer Vororte, wie List, Vahrenwald, Hainholz und Herrenhausen zählt, sprechend ausdrückt.
Mit dem Anwachsen der Bevölkerungszahl ging selbstverstiindlich das Anwachsen des städtischen Verwaltungskörpers Hand in Hand. Seinen Bedürfnissen entsprachen bald mehr weder das alte, aus dem 15. und 16. Jahrhundert stammende, werthvolle Kunstschätze enthaltende, 1882 durch C. W. Hase wieder hergestellte und durch Prof. Schaper mit einem schönen Wandgemälde geschmückte Rathhaus am Markt und an der Köblinger- und Marktstrasse, noch auch das neue Rathhaus an der Friedrich-Strasse. Längere Zeit suchte man sich einzurichten, aber die Verhältnisse reiften einer Entscheidung entgegen, sodass die städtischen Kollegien in ihrer Sitzung vom 15. März 1895 gezwungen waren, die Nothwendigkeit der Erbauung eines neuen Rathhauses anzuerkennen und das Stadtbauamt mit den Vorarbeiten dafür zu betrauen. In gemeinsamer Arbeit der Hrn. Stadtbauinsp. Aengeneyndt und Rowald, sowie unter Mitwirkung des städtischen Garten-Inspektors Trip wurden Studien über die Lage des Bauplatzes des neuen Rathhauses angestellt und das Bauprogramm für dasselbe aufgrund eines Vorentwurfes bearbeitet, den Hr. Stadtbauinsp. Rowald verfasst hatte. Den städtischen Kollegien wurde der Vorschlag gemacht, das neue Rathhaus auf den vorderen Theil der Masch zu stellen und sie beschlossen auch dem entsprechend, Vorschlag und Beschluss fanden aber nicht die allseitige Billigung der Bürgerschaft. Es erhob sich eine starke Opposition, nicht sowohl gegen die Wahl des Platzes an sich, wie gegen die städtischerseits vorgeschlagene architektonische Ausgestaltung des gesammten Geländes, auf welchem sich das vor einigen Jahren neu errichtete Kestner-Museum bereits erhebt und das neue Provinzial-Museum sowie das inrede stehende Rathhaus noch erheben sollen. Der Führer der Opposition war Hr. Bth. Th. Unger in Hannover, der eine Gruppirung der in Aussicht genommenen Bauwerke nach eigenem Plane dem Entwurfe des Stadtbauamtes entgegenstellte. Der Kampf wurde zum nicht geringen Theile auch in der „Deutschen Bauzeitung“ und zwar in Jahrg. 1895 S. 221 ff. und 427 f. geführt. Auf die dort unter Beigabe von Lageplänen erfolgten Darlegungen kann mit dem Hinweise verwiesen werden, dass die Opposition, die bereits bei der Ausschreibung der Konkurrenz um Entwürfe für das neue Provinzial-Museum sich erhob, sich bis zur Ausschreibung des Wettbewerbes um Entwürfe für ein neues Rathhaus eines Erfolges nicht rühmen konnte. Auch das Ergebniss des Wettbewerbes selbst war nicht geeignet, die Stellung der Opposition zu verstärken; es ergab vielmehr einen Sieg des Vorentwurfes des Stadtbauamtes.
Dies ist ein historischer Text, welcher nicht geändert wurde, um seine Authentizität nicht zu gefährden. Bitte beachten Sie, dass z. B. technische, wissenschaftliche oder juristische Aussagen überholt sein können. Farbige Bilder sind i. d. R. Beispielbilder oder nachcolorierte Bilder, welche ursprünglich in schwarz/weiß vorlagen. Bei diesen Bildern kann nicht von einer historisch korrekten Farbechtheit ausgegangen werden. Darüber hinaus gibt der Artikel die Sprache seiner Zeit wieder, unabhängig davon, ob diese heute als politisch oder inhaltlich korrekt eingestuft würde. Lokalgeschichte.de gibt die Texte (zu denen i. d. R. auch die Bildunterschriften gehören) unverändert wieder. Das bedeutet jedoch nicht, dass die darin erklärten Aussagen oder Ausdruckweisen von Lokalgeschichte.de inhaltlich geteilt werden.
Zu der Preisbewerbung waren Angehörige des deutschen Reiches und der österreichisch-ungarischen Monarchie eingeladen. Um den nationalen Charakter der Konkurrenz auch in der Zusammensetzung des Preisgerichtes zum Ausdruck zu bringen, war Hr. k. k. Ob.-Brth. Otto Wagner aus Wien eingeladen worden, neben den deutschen Preisrichtern das Preisrichteramt zu übernehmen. Es liefen, wie bereits berichtet werden konnte, imganzen 53 Entwürfe ein, eine im Vergleich zu dem Ergebniss der entsprechenden Wettbewerbe in Elberfeld und Stuttgart und im Hinblick auf die Bedeutung der Aufgabe auffallend geringe Zahl, die aber namentlich in zwei Umständen ihre natürliche Erklärung findet. Einmal in dem Umstande, dass – zufolge von Angaben, welche auf unbegreifliche Weise in die Presse gelangt und geeignet sind, die strenge Anonymität der Wettbewerbe zu durchbrechen – in Hannover 23 Entwürfe, in Berlin und Umgegend dagegen nur 10 Entwürfe aufgegeben sind. Wenn nun auch anzunehmen ist, dass nicht sämmtliche 23 Entwürfe, die in Hannover aufgegeben wurden, auch dort gefertigt sind, wenn auch das Interesse der dortigen Architekten am intensivsten war und wenn auf der anderen Seite die Annahme nicht bestritten werden kann, dass Berlin zweifellos mit mehr als 10 Entwürfen auf den Plan getreten ist, so ist doch das Verhältniss dieser beiden Zahlen zu einander ein gegen alle Erwartung auffallendes.
Liegt es nicht nahe, die unzweifelhafte Zurückhaltung Berlins mit den Vorarbeiten für die Gewerbe-Ausstellung in Verbindung zu bringen?
Auf der anderen Seite waren es die Freiheiten des Programmes inbezug auf die Annahme eines oder zweier Bauwerke für die Räume des neuen Rathhauses und inbezug auf die Beibehaltung oder Abtragung des Kestner-Museums, welche manchen Zweifler bewogen haben mögen, sich nicht an dem Wettbewerbe zu betheiligen. Wir haben einige Stimmen gehört, die bei der immerhin anfangs noch sehr reichlich bemessenen Arbeit, die jedoch später verringert wurde, bestimmte Forderungen des Programmes inbezug auf das Kestner-Museum wie inbezug auf die Vertheilung der Diensträume des neuen Rathhauses auf ein oder zwei Gebäude aufgestellt zu sehen wünschten und welche die Erfüllung dieser Forderungen grundsätzlich verlangten. Wir meinen mit Unrecht. Denn ein Wettbewerb ist doch in erster Linie dazu da, durch Erlangung einer besten Lösung für eine noch unbestimmte Aufgabe die möglichste Klarheit in diese zu bringen. Und da sollte bei einer Aufgabe von so weittragender Bedeutung wie das neue hannoversche Rathhaus die Stadt nicht berechtigt sein, auch in Punkten der Raumvertheilung die etwa herrschenden Zweifel der Lösung durch einen Wettbewerb zu überlassen? Durchaus! Wir haben immer zu denjenigen gehört, welche in erster Reihe für die möglichste Ersparung unnützer Arbeit bei Wettbewerben gekämpft haben, aber im vorliegenden Falle stehen wir auf der Seite der hannoverschen Stadtverwaltung.
Der Umstand, dass „nur“ 53 Entwürfe (darunter nach den vorhin genannten Veröffentlichungen der hannoverschen Tagesblätter 3 aus Oesterreich) eingelaufen sind, erklärt sich somit in genügender Weise und wer darin eine Abnahme des Interesses an Wettbewerben erblicken will, der wird angesichts des hohen Durchschnittswerthes der Entwürfe sowie angesichts der stattlichen Zahlen, welche bei einer Reihe mittlerer Wettbewerbe in letzter Zeit erzielt wurden, eines besseren belehrt.
Und das ist auch gut so. Denn wenn etwas die deutsche Architektenschaft im Vergleich zu der unserer Nachbarländer frisch und leistungsfähig gemacht und erhalten hat, so ist es die segensreiche Einrichtung der öffentlichen Wettbewerbe, welche es auch dem verborgensten Talente ermöglicht, ans Licht zu treten und bereits bewährte Kräfte vor dem Rosten bewahrt. Im nächsten Aufsatze sei zunächst der Versuch unternommen festzustellen, wie sich die Zahl der Entwürfe zu den einzelnen möglichen Freiheiten des Programms inbezug auf die Erhaltung des Kestner-Museums und die Annahme eines oder zweier Gebäude für das Rathhaus verhält.
Der Wettbewerb um Entwürfe für ein neues Rathhaus in Hannover.
Der Angelpunkt der Vorerörterungen über die Lage des neuen Rathhauses war die Erhaltung oder Abtragung des Kestner-Museums. Die Ansichten hatten sich aber im Laufe der Zeit so weit geklärt, dass das Konkurrenz-Programm nur die Erhaltung und Vergrösserung dieses Museums in Aussicht genommen hatte und es in das freie Ermessen der Theilnehmer des Wettbewerbes stellte, zu ihm einen symmetrisch gelagerten Flügelbau zu schaffen, der mit dem Hauptbau einen stattlichen Vorhof umrahmen sollte, oder nicht. Die verlangten Räume konnten auf diese beiden Bauten vertheilt oder aber in nur einem Hauptbau untergebracht werden.
Beide Grundgedanken sind in der interessantesten Weise verwerthet worden. Es liegt dabei aber auf der Hand, dass sich für den Vorschlag des Stadtbauamtes, der in so bestimmter Form auftrat, dass man annehmen konnte, er gebe die Wünsche der ausschlaggebenden Partei in der Stadtverwaltung wieder, die meisten Bewerber entschieden.
Zu diesem Gesichtspunkt rein praktischer Erwägung trat freilich noch der andere, dass der Vorschlag des Stadtbauamtes etwas „Normales“, zwanglos Gegebenes an sich hatte und schon in dieser Eigenschaft den Beifall einer grösseren Zahl von Wettbewerbern zu erringen geeignet war, als ein Vorschlag, der über das Hergebrachte hinausgehend, der künstlerischen Erfindung einen freieren Spielraum gelassen haben, jedoch für eine gute Lösung einen weitaus grösseren Aufwand an künstlerischer Arbeit gefordert haben würde. Thatsächlich sind es nur zwei gute Entwürfe, welche über das Normale hinausgegangen sind und unter Ueberwindung grosser Schwierigkeiten in geistreichster Weise versucht haben, auf der Grundlage der gegebenen Verhältnisse in Gruppirung und Aufbau ein Rathhaus zu schaffen, welches nicht allein einen der Bedeutung der Aufgabe entsprechenden eigenartigen künstlerischen Gedanken aufweist, sondern auch das Bestreben zeigt, die künstlerische Form des Hauses von der durch das Wiener Rathhaus gegebenen traditionellen Ueberlieferung loszulösen und sie dem mittelalterlichen Rathhausbau nicht der belgischen, sondern der deutschen Städte in der Zeit ihrer Blüthe zu nähern.
Es sind dies die Entwürfe mit dem Kennzeichen eines weissen Hasen im blauen Feld des Hrn. Rich. Schultze, Stadtbaumeister in Berlin, und mit dem Kennwort: „Auf deutscher Erde ein deutsches Haus“. Beide Entwürfe, auf die wir noch eingehender zurück kommen werden, sind, wenn sie auch im Grundriss nicht die konzentrirte Anlage zeigen, welche das Preisgericht zur Ertheilung des ersten Preises an den Entwurf „Piano“ veranlasst haben mochte und selbst wenn sie in der Grundrissanlage nach der Ansicht der Preisrichter einige Unmöglichkeiten enthalten sollten, so hervorragend, dass es uns unbegreiflich erscheint, dass sie nicht beide wenigstens zum Ankauf empfohlen wurden. Merkwürdigerweise ist der eine der Entwürfe, der des Hrn. Richard Schultze, nicht einmal in die engste Wahl gekommen, während sich in derselben und selbst unter den preisgekrönten Entwürfen Arbeiten befinden, die man lieber nicht in dieser Gruppe gesehen haben möchte. Wir wollen es dahingestellt sein lassen, ob hier wieder der, allgemach üblich gewordene “blinde Zufall gewaltet hat oder ob sonstige Gründe für die getroffenen Entscheidungen maassgeben gewesen sind. Das Rätsel wird allerdings zumtheil gelöst durch eine in der heutigen Nummer befindliche Notiz, nach welcher es die Preisrichter nicht für zweckmässig gefunden haben, ein Empfehlung zu Ankäufen auszusprechen. Das ist angesichts einer Reihe ausgezeichneter, nicht preisgekrönter Entwürfe hart, sehr hart und wird viel Verstimmung erregen. Das steht unzweifelhaft fest und wird durch diesen Vorfall nur bekräftigt, dass Preisrichter-Kollegien und Konkurrenten sich immer mehr zu zwei Gruppen herausgebildet haben, welche sich statt in Eintracht im Gegensatz befinden, trotzdem (oder weil?) im allgemeinen die erstere Gruppe aus der zweiten hervorgegangen ist. Denn die weitaus grösste Mehrzahl der Preisrichter pflegen doch erfolgreiche Konkurrenten gewesen oder noch zu sein. Man wird ausserdem angesichts von Vorgängen der letzten Zeit unwillkürlich dazu gedrängt, an das Verhältniss zwischen Lehrer und Schüler zu denken; bestärkt wird diese Annahme durch das Auftreten einzelner Preisrichter und durch manche Redewendungen in den Protokollen. Es wird vielfach übersehen, dass in nicht wenigen Fällen die Preisrichter nur der besonderen Gunst eines Hrn. Stadtbaurathes oder lokalen Beziehungen ihre Würde verdanken und dass unter den von ihnen beurtheilten Konkurrenten sich sehr oft Künstler befinden, welche mit zehnmal grösserer Berechtigung auf dem hohen Preisrichterstuhle sitzen könnten, als manche der Preisrichter.
Also wozu der hohe Ton und das offenkundige Uebersehen der vitalsten Interessen der Wettbewerber? Sollte man es denn für möglich halten, so fragen wir, dass bei einem Wettbewerbe, der an die geistige und physische Leistungsfähigkeit seiner Theilnehmer so hohe Anforderungen stellte, wie kaum ein anderer der letzten 10 Jahre, das Preisgericht seine natürliche Zusammengehörigkeit mit den Wettbewerbern so weit vergessen konnte, dass es den angesichts der ungeheuren Menge geistiger und physischer Arbeit, die in einem Wettbewerb zum Ausdruck kommt, in Aussicht gestellten, wenn auch noch so reich bemessenen, doch in jedem Falle nicht entsprechenden Lohn nicht einmal ganz zur Vertheilung gebracht hat?
Nennt man das Anerkennung aufgewendeter Arbeit? Hätte ein Preisrichter-Kollegium von Magistrats-Assessoren unkollegialer verfahren können?
Es wird angesichts der betrübenden Erscheinungen, die in diesem wie in jüngst vorgekommenen Fällen zutage getreten sind, eines geschlossenen Zusammenstehens aller jener bedürfen, welche von der so segensreichen Einrichtung unserer öffentlichen Wettbewerbe eine Zukunft erhoffen, die Aussichten auf diese Zukunft aber durch das in der letzten Zeit mehrfach beobachtete Verhalten der Preisrichter-Kollegien in entmuthigendster Weise getrübt sehen.
Doch zurück zu den Entwürfen. Von den 53 Arbeiten, welche zu dem Wettbewerb eingelaufen sind, haben sich 31 an den Vorschlag des Stadtbauamtes derart gehalten, dass sie das Rathhaus parallel zum Friedrichswall legten, unter Bildung eines Vorhofes und Annahme eines symmetrischen Geschäftshauses als Gegensatz zu dem vergrösserten Kestner-Museum; nur in der grösseren oder geringeren Tiefe des Vorhofes zeigten sie einen Unterschied. Die Tiefe des Vorhofes und seine perspektivische Erscheinung war für manche Wettbewerber Gegenstand eingehendster Erwägung. Eine Folge derselben sind z. B. die Anlagen, welche eine Vertheilung der Räume in 2 Gebäuden angenommen, jedoch die sich nun ergebenden 3 Bauwerke in keiner Weise in eine Symmetrie eingezwängt haben. Ein Beispiel dafür ist der Entwurf No. 28 „Rathhaus im Park“ des Hrn. Hfbrth. a. D. E. Klingenberg in Treseburg, der auch in die engste Wahl gelangt ist. In diesem Entwurf ist der Versuch unternommen, die hintere Flucht des Kestner-Museums als Längsaxe des quadratisch mit 4 Höfen und in der Mitte aufragendem Thurm angelegten Rathhauses zu benützen und das Geschäftshaus mit seiner Queraxe in die Verlängerung dieser Axe, jedoch parallel zur Maschrandstrasse und in schräger Lage zum Friedrichswall zu legen. Das Kennwort dieses Entwurfes „Rathhaus im Park“ enthält zu gleicher Zeit eine Andeutung über die Gruppirung des Hauptbaues, dessen innere Kreuztrakte um eine Geschosshöhe über die umgebenden äusseren Trakte in die Höhe gezogen sind und von dem auch in anderen tüchtigen Entwürfen wiederkehrenden zentralen Thurm überragt werden. Aus dieser Anlage ergiebt sich für den interessanten Entwurf ein vorzüglich abgestuftes perspektivisches Bild, welches allen Forderungen der freien Lage gerecht wird. Ein anderer Entwurf, der noch in diese Gruppe gehört, zeigt Kestner-Museum, Rathhaus und Geschäftshaus auf eine durchgehende, mit dem Friedrichswall parallele Mittelaxe aufgereiht, ein dritter die 3 Bauwerke mit ihrer Vorderfassade in eine dem Friedrichswall parallele Flucht gerückt. Ein Versuch, der unter Umständen auch noch in diese Gruppe gerechnet werden könnte, ist in dem Entwurf mit dem Kennwort „Bismarck“ unternommen. Das Kestner-Museum bleibt bestehen. Der Hauptbau des Rathhauses wird auf die Axe des Winkels der Friedrich- und Maschrandstrasse gestellt, das nunmehr zum Hauptbau schräg liegende Kestner-Museum mit letzterem verbunden und zu dieser Anlage auf der anderen Seite ein Gegenstück geschaffen. Der Eindruck des Gekünstelten lässt sich jedoch in dieser Anlage nicht abweisen. Es hat auch nicht an einem Versuche gefehlt, das Rathhaus überhaupt an die Maschrandstrasse und zwar parallel mit der Axe des Kestner-Museums zu stellen und dieses in seiner Längsaxe so zu verlängern, dass es ein paralleles Gegenstück von ungefähr gleicher Längenausdehnung zum Rathhaus bildet.
Wieder ein anderer Entwurf hat das Rathhaus auf die Halbirungslinie des schon genannten Strassenwinkels gestellt und das Geschäftshaus zwischen Rathhaus und Kestner-Museum, jedoch parallel mit dem Friedrichwall gelegt. Auch das ist ein Versuch, der nicht Natürlichkeit für sich in Anspruch nehmen kann. Noch eine Anzahl anderer Varianten sind auf der Grundlage dieser Annahme der Bauwerke versucht. Es ist jedoch nicht möglich, auf alle einzugehen.
Nur einer Variante sei noch gedacht. Es ist die in dem Entwurf von H. Fittschen in Hamburg. In diesem Entwurfe wird das um 2 grosse und 2 kleine Höfe gruppirte Rathhaus mit seiner Vorderfront nahezu in die hintere Flucht des Kestner-Museums gerückt, mit diesem verbunden und rechts vom Museum ein weiteres Bauwerk angeordnet, das in der Längsaxe der Verbindungsgallerien liegt.
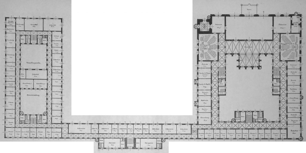
Sehr verschiedenartig sind die Lösungen, welche unter Verzicht auf die Verwirklichung des gegebenen Raumprogramms in zwei Gebäuden versucht haben, das infolge dessen entstandene grössere Gebäude in mannichfaltige Beziehung zum Kestner-Museum zu bringen. Von den preisgekrönten Entwürfen gehört zu dieser Gruppe nur der des Hrn. Geh. Brth. Hermann Eggert in Berlin, dessen Grundriss wir auf S. 333 geben. Sämmtliche anderen mit Preisen bedachte Entwürfe entsprechen in ihrer Gesammtanlage dem Vorschlage des Stadtbauamtes. Die interessantesten Lösungen ohne Gegenstück zum Kestner-Museum sind der schon genannte Entwurf des Hrn. Richard Schultze und der Entwurf mit dem Kennwort „Auf deutscher Erde ein deutsches Haus“, Der erstgenannte Entwurf giebt der Grundform des Rathhauses die Form eines nach der Friedrichstrasse geöffneten U, ordnet im östlichen Flügel um einen grossen Hof die Festräume und Sitzungssäle an, im westlichen, um 2 kleine Höfe gruppirten Flügel die Verwaltungsräume, die sich auch in dem verbindenden Zwischentheil finden.
Das Gebäude aber ist so gestellt, dass seine Ostseite parallel zur Maschrandstrasse läuft, sodass die Vorderflucht mit der Seitenflucht des Kestner-Museums einen spitzen Winkel bildet.
Der andere Entwurf besitzt eine verwandte Anlage, ist aber parallel und rechtwinklig zum Kestner-Museum geordnet und enthält zwischen diesem und dem Rathhaus eine Piazetta, zu der man über einige Stufen, vor denen nach venetianischer Art Säulen stehen, gelangt. „Die Bezeichnung Piazetta ist aber nicht gebraucht worden, um unberechtigte Ansprüche zu erheben, sondern lediglich, um damit einen kleineren, architektonisch umrahmten und dem durchgehenden Wagenverkehr entrückten Platz neben einem grösseren zu charakterisiren“. Die in diesen Worten des Erläuterungsberichtes zum Ausdruck gebrachte Bescheidenheit ist die echte Bescheidenheit grossen und vertieften künstlerischen Könnens, das den ungemein interessanten Entwurf auszeichnet.
Es sind imganzen 14 Entwürfe, welche die sämmtlichen im Raumprogramm verlangten Räume in einem Gebäude untergebracht haben, das parallel zum Friedrichswall steht, oder doch mit seiner Fluchtlinie nicht wesentlich von der Fluchtlinie der Strasse abweicht. Weitere fünf Entwürfe, welche gleichfalls sämmtliche Räume in ein Gebäude vereinigt haben, haben dieses auf die Axe des Winkels von Friedrich- und Marschrandstrasse gestellt. Vier Entwürfe zeigen andere Vorschläge. Wenn die Summe der hier aufgeführten Entwürfe die Zahl der Einlieferungen übersteigt, so kommt dies daher, dass manche Entwürfe Varianten hatten. So tritt z. B. Der Entwurf mit dem Kennzeichen des Schlüssels mit zwei Varianten, die sich auf die Länge des Gebäudes beziehen, auf.
Den Unger’schen Gedanken der Anordnung der jetzt in Aussicht genommenen Gebäude und etwaiger späterer Bauwerke in dem zukünftigen Stadtparke vertrat mit aller Entschiedenheit nur ein Entwurf mit dem Kennwort „Majorum artem prosequor“, der auch in die engere Wahl gelangt ist und vielleicht von Hrn. Brth. Unger selbst herrühren dürfte. Die in ihm vertretenen Gedanken der Gesammtanlange haben im Preisrichter-Kollegium insofern einen Wiederhall gefunden, als dasselbe, wohl auf Veranlassung des Hrn. Ob-Brth. Wagner aus Wien, den Wunsch aussprach, hinter dem Rathhaus durch die Anlage seitlicher Gebäude einen architektonisch umrahmten Platz geschaffen zu sehen, welcher für de Beurtheilung der Maassstabsverhältnisse des neuen Rathhauses die geeigneten Anhaltspunkte giebt und sie besser geben könnte als eine frei landschaftliche Umgebung. Dieser Wunsch ist aber, wenn wir recht unterrichtet sind, dem Protokoll nur als eine Art Resolution angefügt worden.
Und hiermit seien die Erörterungen über die Lageverhältnisse geschlossen und die Aufmerksamkeit der Leser auf die Entscheidungen des Preisgerichtes hingelenkt, die sich doch in der Hauptsache mit der Raumvertheilung und künstlerischen Gestaltung des Hauptgebäudes zu beschäftigen hatten. Von den eingelaufenen 53 Entwürfen wurden beim 1. Gange 15 wegen künstlerischer und technischer Unzulänglichkeit ausgeschieden. Bei einem zweiten Gange fielen weitere 15 Entwürfe. Auf der engeren Wahl verblieben somit 23 Entwürfe mit den folgenden Kennworten bezw. Kennzeichen: „Rathhaus im Park“ (Verf. Hfbrth. a. D. E. Klingenberg in Treseburg), „hie gut teutsch“ (Verf. Herm. Billing in Karlsruhe), „1895“, „Gefällt’s, erstellt’s“ (Verf. Prof. K. Henrici in Aachen), „Erst wäge, dann wage“, „Aus Vaterlandsliebe‘“‘ (Verf. Fittschen in Hamburg), „Bürgersinn“, „Beatus ille“ (Verf. Ludw. Engel in Berlin), „Rother Kreis‘, ‚In letzter Stunde‘, „Auf deutscher Erde ein deutsches Haus‘, „Providentiae memor‘, „Schlüssel im Dreipass‘‘ (Verf. Vollmer u. Jassoy in Berlin), „Zentralthürme‘, „Majorum artem prosequor‘ (Verf. Brth. Th. Unger in Hannover?), „Frisch“, „Forum urbis“ und die durch Preise ausgezeichneten Entwürfe.
Es erscheint im Hinblick auf die diesen Aufsätzen beigegebenen Illustrationen kaum nöthig, auf die letzteren ausführlicher einzugehen. Was dem Entwurf „Piano“ des Hrn. Prof. H. Stier die Palme eingebracht hat, erhellt auf den ersten Blick: es ist die ungemein geschlossene, in der Lage der Haupt- und der Verwaltungsräume nach Möglichkeit zusammen gefasste Grundriss-Entwicklung, die in sich alle Vorzüge praktischer Verwendbarkeit mit künstlerischer Gestaltungskraft vereinigt. Die ungemeine Konzentration der Anlage fällt namentlich ins Auge, wenn man diesen Entwurf mit dem gleichfalls vorzüglich disponirten Entwurf „Labor“ des Hrn. Th. Kösser in Leipzig vergleicht. Dass beide Entwürfe die Festräume an die Front gegen die Masch gelegt und durch eine in einen grossen Lichthof bezw. Eine gedeckte Halle eingebaute grosse Treppe zugänglich gemacht haben, erscheint durchaus natürlich. Dass es aber möglich ist, den Verhältnissen auch noch eine andere Seite abzewinnen, zeigt der geistvolle Entwurf „Das Oberlicht“ des Hrn. Heinrich Seeling in Berlin, der an der dritten Stelle ausgezeichnet wurde. In seiner Grundrissanlage ist der Grundgedanke maassgebend die grossen Säle nach Möglichkeit zur Schaffung grosser Architekturmotive nach zwei Seiten zu benutzen, denn es liegt auf der Hand, dass die Ansicht nach der Friedrichstrasse nicht minder wichtig ist, als die nach der Masch. Aus dieser Erwägung der Gleichwerthigkeit und auch aus perspektivischen Gründen entstand die nach der Masch zu geöffnete U-Form des Entwurfes, die der U-förmigen Anlage nach vorne, durch Kestner-Museum und Gegenstück gebildet, entspricht. Kösser hat die beiden Sitzungssäle an die Seitenfronten verlegt, Stier auf ihre Mitwirkung in der Aussenarchitektur zugunsten einer kompresseren Anlage ganz verzichtet. Indessen muss der Unbefangene anerkennen, dass auch der Seeling’sche Entwurf die grösstmögliche Konzentration der Haupträume besitzt. Der zweite mit dem dritten Preise ausgezeichnete Entwurf des Hrn. Arch. O. Schmidt in Chemnitz zeigt eine der Kösser’schen verwandte Anlage.
Wesentlich verschieden von den hier besprochenen Grundrissen ist der des Entwurfes mit dem Zeichen des gestielten Kleeblattes des Hrn. Geh. Brth. H. Eggert-Berlin und zwar infolge der Zusammenlegung sämmtlicher Räume in einem Gebäude. Aus dem grossen Ausmaass des verlangten Flächenraumes ergiebt sich zunächst die Gruppirung der Anlage um 5 grosse Höfe. Festsäle und Sitzungsräume sind in stattlicher Front gegen die Friedrichstrasse gelegt und durch eine Treppe von grosser Anlage zugänglich gemacht. Ein mächtiger Thurm ist an die östliche Ecke des Bauwerks verlegt und beherrscht dessen fein empfundenen Aufbau. Auch bei diesem Grundriss ist kaum eine grössere Konzentration der Haupträume möglich. Die Höfe geben durch Treppenausbauten usw. Anlass zu interessanter künstlerischer Ausbildung. Ob es zweckmässig ist, die Räume für den Stadtdirektor, den Stadtsyndikus, die Rathsstube und die Kommissionszimmer so weit vom Haupteingange ab zu legen, wie hier, das hängt von lokaler Gewohnheit ab.
Der letzte der preisgekrönten Entwürfe ist der mit dem auffallenden Kennworte „Herzflamme“, das jedoch keineswegs auf die Sturm- und Drangperiode eines heimlich liebenden Jünglings zu schliessen berechtigt, sondern das aus einer Betrachtung der räumlichen Entwicklung der Stadt Hannover sich ableitet. Der Verfasser des Entwurfes will nämlich gefunden haben, dass die heutige Fläche der Stadt Hannover ungefähre Herzform besitze, deren oberer Einschnitt an der Stelle liegt, wo die Masch in das bebaute Gebiet sich hineinschiebt. Nach dem Vorbilde des flammenden Herzens, des in voller Lebensthätigkeit sich befindenden Organes, würde das neue Rathhaus gewissermaassen die Flamme der Herzform bedeuten, zugleich auch sinnbildlich, weil sich in ihm das innere Leben der Stadt konzentrirt. Es scheint, als ob die Preisrichter von dieser zweifellos durchaus originellen Idee so hingerissen gewesen sind, dass sie ihretwegen den Entwurf mit einem Preise ausgezeichnet haben; denn andere Gründe konnten wir nicht dafür wahrnehmen.
Der Wettbewerb um Entwürfe für ein neues Rathhaus in Hannover.
In dem voraufgegangenen Berichte über den vorstehenden Wettbewerb ist auf S. 331 ein Schreibfehler insofern begangen, als der mit einem 3. Preise ausgezeichnete Entwurf „Vereint“ des Hrn. O. Schmidt in Chemnitz bezw. Dresden, der nach unseren Notizen einen sehr schönen und klaren Grundriss besitzt, als mit dem Kösser’schen Grundriss verwandt bezeichnet wurde; er besitzt thatsächlich Aehnlichkeit mit dem Stier’schen Grundriss; seine wesentlichste Abweichung von diesem Entwurfe besteht in der grundsätzlichen Vereinigung sämmtlicher Diensträiume unter einem Dache.
Ueber die Gestaltung des Aufbaues der mit Preisen ausgezeichneten Entwürfe geben die diesen Aufsätzen beigefügten Abbildungen so erschöpfende Auskunft, dass dieselbe einer besonderen Erwähnung nicht bedarf. Zu ergänzen wäre, dass nach unserer Empfindung der Aufbau des Kösser’schen Entwurfes nicht die hohe Stufe erreicht, auf welcher der hervorragende Grundriss steht. Den Aufbau des Schmidt’schen Entwurfes hoffen wir noch in einer Skizze darstellen zu können.
Von den auf der engeren Wahl gewesenen Entwürfen wurde des Entwurfs mit dem Kennwort „Auf deutscher Erde ein deutsches Haus“ bereits gedacht. Die Darstellung dieses Entwurfes ist keine solche, dass sie auch nur in der geringsten Weise darauf berechnet wäre, aufzufallen. Sie entbehrt im Gegentheil des grossen Striches, aller künstlerischen Mache und selbst der allmählich landläufig gewordenen zeichnerischen Geschicklichkeit. Die Darstellung ist eher ängstlich als sicher. Aber wie verschwinden alle diese Ausstellungen gegenüber dem überlegenen künstlerischen Inhalt, den der Entwurf darbietet. Wenn es in der ganzen Konkurrenz eine Arbeit giebt, die im innersten Herzen deutsch empfunden ist, wenn es eine Arbeit giebt, die alle Vorzüge des deutschen Künstlergemüthes zum Ausdruck bringt, so ist es dieser Entwurf, dessen Grundriss wir in keinem Falle dem schönen Stier’schen gleich stellen wollen – das verhindert schon die grundsätzlich verschiedenartige Anordnung – dessen deutscher Aufbau aber allen Entwürfen überlegen ist und der seinem Kennworte entspricht wie das Ei der Schale. Angesichts dieses und einiger anderer Entwürfe ist uns die Frage aufgestossen, ob nicht im Laufe der Entwicklung des Konkurrenzwesens der Grundriss eine zu prädominirende und entscheidende Rolle spielt und ob nicht bei Entscheidungen auch dem Aufbau ein gewisses Gewicht zuzufallen hätte. Wir geben zu, dass die Frage eine ausserordentlich schwierige ist und in jedem Falle einer besonderen Entscheidung bedürfen wird. Aber sie sei angeregt, um ihre Besprechung überhaupt anzuregen. Die Frage ist keine willkürlich gestellte; sie steht mit der zunehmenden künstlerischen Vertiefung unserer modernen Bauaufgaben einerseits, andererseits mit dem in immer häufigeren Fällen zutage tretenden Verlassen der strengen Symmetrie in ursächlichem Zusammenhang, und von diesem aus betrachtet ist sie wohl der Erwägung werth.
Ein Entwurf von grossen künstlerischen Vorzügen ist auch der mit dem Kennwort „hie gut teutsch“ des Hrn. Hermann Billing in Karlsruhe. Die Vertheilung der Räume ist die vom Stadtbauamte vorgeschlagene auf 2 Gebäude, wobei der entstehende Vorhof eine flachere Form erhalten hat. Die Sitzungssäle liegen an der Fassade gegen den Friedrichswall, die Festräume gegen die Masch. Ein stattliches Treppenhaus von monumentaler Gestaltung, dem eine besondere perspektivische Darstellung in flottem Vortrag gewidmet ist, vermittelt im Mittelpunkt der Anlage den Verkehr unter den Geschossen. Eine thurmartig überhöhte, vierseitige, leider konstruktiv unmögliche Zentralkuppel beherrscht das Hauptgebäude. Die Formensprache der gesammten Anlage ist die der romanischen Zeit Deutschlands. Die möglichst einheitliche Gestaltung der Baugruppe ist dadurch zu erreichen versucht worden, dass das Geschäftshaus im Stil des Hauptgebäudes gehalten ist und das Kestner-Museum seitlich und nach rückwärts eine sehr geschickt angeordnete Einkleidung erfahren hat. Das Kestner-Museum ist mit dem Hauptgebäude lediglich durch eine Bogenhalle, das Geschäftshaus aber mit demselben durch einen dreigeschossigen Verbindungsbau verbunden.
Der Entwurf ist eine selbständige und eigenartige künstlerische Leistung von beachtenswerther Bedeutung.
Die gleichen Vorzüge künstlerischer Gestaltungskraft heben den Entwurf „Bentus ille“ des Hrn. Ludwig Engel in Berlin hervor, Es ist eine ausgezeichnete, feine Arbeit, nach dem Vorschlag des Stadtbauamtes angelegt, doch so, dass das vergrösserte Kestner-Museum im Stil unverändert blieb und durch eine schlichte Bogenhalle mit dem Hauptbau in Verbindung gesetzt wurde, das Geschäftshaus dagegen das Gepräge der fein empfundenen deutschen Renaissance erhalten hat, die den Hauptbau auszeichnet. Säimmtliche Säle sind nach der Front gegen die Masch verlegt, die beiden Sitzungssile an die beiden hinteren Ecken. Die Vorderfassade beherrscht ein stattlicher Thurm.
Eine gothisirende Renaissance von gleicher Feinheit besitzt der eindrucksvolle Entwurf mit dem Kennzeichen des Schlüssels im Dreipass der Hrn. Vollmer & Jassoy in Berlin. Der Entwurf verzichtet auf die Anlage eines zweiten Gebäudes und erfüllt das gesammte Raumprogramm unter einem Dach. Die Säle liegen an der Front gegen den Friedrichswall, der trotzige Thurm gegen die Masch.
Eine in einen grossen axialen Lichthof eingebaute Freitreppe verbindet Erd- und Hauptgeschoss mit einander. Für die Lage des Gebäudes sind mehre Varianten unter gleichzeitiger Angabe der erwünschten Strassendurchbrüche angenommen.
Der reizvoll und virtuos vorgetragene Entwurf „Frisch“ in spätgothischen Formen gehalten, verlegt die Sitzungssäle an die Masch und den Thurm an die Friedrichstrasse. Dem Raumbedürfniss ist durch 2 Gebäude genügt; das Nebengebäude ist im Stil vom Hauptgebäude gehalten, während das Kestner-Museum im gleichen Stil vergrössert ist. – Von den Entwürfen der engeren Wahl ist noch bemerkenswerth der Entwurf „1895“, welcher auf der durch das Stadtbauamt gegebenen Grundlage aufbaut und die Fest- und Sitzungssäle in einer Flucht an der Friedrichstrasse zeigt. Mit den stattlichen Treppenhäusern stehen Ehrenhallen in Verbindung. Der Aufbau besitzt eine feine, maassvolle Architektur; der Thurm liegt in der Mitte des Hauptgebäudes, während der mit einem hohen Giebel geschmückte Mittelbau durch Flankirungsthürme armirt ist. Ein Dachreiter überragt den Giebel.
Des überlieferten Rathhaus-Charakters entbehrend, jedoch nach dem Maassstabe der künstlerischen Qualität gemessen, einer der hervorragende Entwürfe der Konkurrenz ist der zu einem ausgesprochen üppigen Barock hinneigende Entwurf mit dem Kennwort „in letzter Stunde.“ Dem Entwurf „Erst wäge, dann wage“ ist die Auszeichnung der engeren Wahl hauptsächlich durch die gute Grundrisslösung zutheil geworden.
Bemerkenwerthe Entwürfe der engeren Wahl sind, soweit noch nicht genannt, endlich der mit dem Kennwort „Gefällt’s, erstellt’s“ des Hrn. Prof. K. Henrici in Aachen, der mit dem Kennzeichen des rothen Kreises, eine Anlage mit 2 Thürmen, zwischen welchen sich der Festsaal befindet, während die Sitzungssäle an beiden Enden des vorderen Hauptkorridors liegen, und der Entwurf „Providentiae memor“. Zu dem Entwurfe „Majorum artem prosequor“ sind noch die Hrn. Heubach und Schlieben als Mitarbeiter zu nennen. Eine starke „Anlehnung“ an das Pariser Stadthaus zeigt der im übrigen mit Fertigkeit vorgetragene Entwurf „Forum urbis“.
Von den nicht auf die engere Wahl gekommenen Entwürfen verdienen genannt zu werden in erster Linie der Entwurf „Platz vor dem Rathhaus“ der Hrn. Lorenz & Schauppmeyer in Hannover, nicht sowohl wegen der eingestandenermaassen in ihren Grundzügen vergriffenen Grundrisslösung, als wegen der sehr schönen und eigenartigen Architektur des Aufbaues, die in vorzüglicher Darstellung zur Anschauung gebracht ist und von welcher unsere Abbildg. S. 329 eine Vorstellung giebt. Die Lage des alle Räume fassenden Baues ist auf der Axe des Winkels zwischen Friedrich- und Maschrandstrasse angenommen. Ferner noch zu nennende Entwürfe sind die mit den Kennworten: „Für Rath und Bürgerschaft“ und „Gut Deutsch“ (Verf. Otto Lüer in Hannover), „Donato Lazzari“, mit Anklängen an den Hamburger Rathhausentwurf des Jahres 1876 von Mylius & Bluntschli, „Rede“, in welchem der Festsaal an der Masch, die beiden Sitzungssäle dagegen am Friedrichswall liegen und durch den Thurm getrennt sind und der Entwurf „hal over“.
Das wäre in grossen Zügen der Wettbewerb um das Rathhaus in Hannover. Er hat eine stattliche Anzahl hervorragendster und zum grossen Theil über dem Mittelwerth stehender Arbeiten zusammengeführt und es kann als ein günstiges Zeichen betrachtet werden, dass die künstlerisch durchaus unzulänglichen Arbeiten sich in nur verschwindend geringer Zahl vorfinden. Ein ungewöhnliches Aufgebot von Arbeit ist verlangt und geleistet, viele Hoffnungen sind geweckt und viele zerstört worden. Und wenn trotz aller immer wiederkehrenden Enttäuschungen mit solcher Liebe und Hingabe an Entwürfen architektonischer Wettbewerbe gearbeitet wird, wie bei dem inrede stehende Wettbewerb, so darf mit Lebhaftigkeit anerkannt werden, dass sie nicht so leicht zum Erlöschen zu bringen ist, die flammende ideale Begeisterung für unsere schöne Baukunst. Und das ist vielleicht das beste Theil der segensreichen Einrichtung der architektonischen Wettbewerbe, dass sie diese Begeisterung wach und regsam hält. Der Wettbewerb um Entwürfe für das Rathhaus in Hannover ist ein sprechendes Beispiel hierfür.
Wie sich nun der weitere Verlauf der Angelegenheit gestalten wird, hängt zunächst noch von den Beschlüssen der städtischen Behörden ab. Soviel kann einstweilen mitgetheilt werden, dass ein engerer Wettbewerb geplant ist, zu dem einzelne der mit Preisen ausgezeichneten Bewerber sowie einige andere Architekten eingeladen werden sollen. Dem neuen, engeren Wettbewerb soll, wie man hört, der Stier’sche Grundriss als Basis dienen. Zu den Grundzügen des Wettbewerbes hat das Preisgericht Stellung genommen. Wir ziehen indess vor, darüber erst dann zu berichten, wenn das Protokoll der Jury in unseren Händen sein wird. Vielleicht ist bis dahin auch der weitere Verlauf der Angelegenheit der Entscheidung entgegengereift.
Zum Schluss drängt es den Unterzeichneten, auch an dieser Stelle Hrn. Stadtbauinsp. P. Rowald in Hannover für die liebenswürdige Unterstützung bei der Berichterstattung über den Wettbewerb den verbindlichsten Dank auszusprechen.
Albert Hofmann.
11.07.1896
Der Wettbewerb um Entwürfe für ein neues Rathhaus in Hannover. (Nachtrag).
Nach dem Abschluss des letzten Aufsatzes über den vorstehenden Wettbewerb ist uns das Protokoll des Preisgerichtes zugegangen, welches bei Eröffnung der Ausstellung der Entwürfe noch nicht auflag, auch nicht in einem handschriftlichen Exemplar, und so, gleichwie von uns von vielen Ausstellungsbesuchern der ersten Tage vermisst, bei den Berichten über den Wettbewerb nicht berücksichtigt werden konnte. Nunmehr liegt dasselbe vor und beginnt mit einer Aufzählung sämmtlicher eingelaufenen Entwürfe nach deren Kennworten, bestätigt deren rechtzeitiges Eintreffen und gedenkt der mit grosser Sorgfalt unternommenen Vorprüfung der Entwürfe hinsichtlich der Programm-Forderungen durch das städtische Bauamt. Aus der Schilderung des weiteren Verlaufes der Thätigkeit des Preisgerichtes entnehmen wir folgendes: Bei der ersten Lesung wurden wegen künstlerischer und technischer Mängel, Nichterfüllung einzelner Programm-Bedingungen usw. 15 Entwürfe ausgeschieden. Die gleiche Zahl von Entwürfen musste nach reiflichen Erwägungen bei der zweiten Lesung zum Ausschluss kommen. Die dritte Sichtung ergab die Ausscheidung weiterer 12 Entwürfe, die „als beachtenswerth anerkannt wurden“, aufgrund einer kurzen Beurtheilung aber gleichfalls ausgeschlossen werden mussten. Die kurze Begründung dieses Ausschlusses ist sehr allgemein gehalten und dürfte manchem Widerspruch begegnen, so wenn z. B. von dem Entwurf „Hie gut teutsch“, der in unverdienter Weise zurückgesetzt worden ist, gesagt wird, der Grundriss entbehre nicht einer gewissen Grossartigkeit, zeigt aber trotzdem viele Mängel, „von denen hervorzuheben ist der konstruktiv sehr bedenkliche Aufbau des Thurmes“. Also der Aufbau des Thurmes ist ein Mangel des Grundrisses! Wenn ferner an dem Entwurf „Beatus ille“ getadelt wird, der äusseren Architektur fehle „die genügende künstlerische Weise“, während dieser Entwurf einer der künstlerisch besten des ganzen Wettbewerbes ist. In vielen Fällen beschränkt sich die Kritik auf Sätze wie: „Der Grundriss muss als ein mangelhafter bezeichnet werden. Die Durchbildung des Aeusseren entbehrt nicht einer gewissen Stattlichkeit“, oder „Das Projekt enthält grosse Fehler in der Grundrisslösung bei malerischer Anordnung der Aussenarchitektur“ usw. Hier hätte doch jeder, namentlich der Konkurrent selbst, gerne erfahren, warum der Grundriss mangelhaft ist. Ueber den Entwurf mit dem Kennwort „Auf deutscher Erde ein deutsches Haus“, als dessen Verfasser sich uns Hr. Arch. Hans Frende in Bunzlau nennt, sagt das Gutachten der Preisrichter zutreffend: „Die Gesammtanlage entspricht nicht den modernen Anschauungen bezüglich der Gestaltung eines Rathhauses. Die Architektur ist aber im höchsten Grade fein gefühlt und poetisch“. Als Verfasser des in dieser Gruppe befindlichen Entwurfes „1895“ bekennt sich Hr.
Arch. Wilh. Dieckmann in Charlottenburg.
Nach drei Lesungen verblieben 11 Entwürfe auf der engeren Wahl, von welchen bei der vergleichenden Prüfung wiederum 5 von der Preiszuerkennung ausgeschlossen wurden.
Sehr befremden muss, dass in diese engere Wahl zwei Entwürfe gelangen konnten, von welchen der eine einen ungenügenden Grundriss zeigt und mehrfach gegen das Programm yerstösst, indem ein programmwidriges Zwischengeschoss angeordnet ist und an dem verlangten Flächenraum 400 qm fehlen, und von welchen der andere ebenfalls gegen das Programm verstösst, indem er 1000 qm Arbeitsräume in einem Dachgeschosse unterbringt und im übrigen mit den folgenden Worten beurtheilt wird: „Der Grundriss erinnert bei sehr schöner Hauptdisposition zu sehr an ein bekanntes Vorbild, dem das Aeussere direkt nachgebildet ist“. Nun, das hat man eigentlich schon seit ungefähr 20 Jahren gewusst, dass der Grundriss des Pariser Stadthauses ein sehr schöner ist; um diese unbestrittene Thatsache zum Gegenstand einer Aeusserung des Preisgerichtes zu machen, dazu hätte es aber nicht nothwendigerweise dieser unmittelbaren Kopie bedurft. Auf keinen Fall durfte dieselbe in die engere Wahl gelangen.
Die letzte Sichtung ergab 6 Entwürfe für die 6 in Aussicht gestellten Preise. Ueber die den Theilnehmern des Wettbewerbes verheissenen Ankäufe enthält das Protokoll nicht die geringsten Andeutungen. Die Reihenfolge der 6 Entwürfe wurde von den „ausserhalb der städtischen Kollegien stehenden Fachleuten‘ wie folgt festgestellt: No. 40, „Piano“, Prof. H. Stier; No. 34, „Das Rathhaus ohne Oberlicht“, Arch. Heinr. Seeling; No. 48, „Vereint“, Arch. Otto Schmidt; No. 7, „Labor“, Arch. Ih. Kösser; No. 26, „Herzflanme“, Arch. Ludwig Klingenberg und No. 18, „Kleeblatt“, Geh. Brth. Eggert. Die endgiltige Abstimmung sämmtlicher, auch der nicht baukünstlerisch gebildeten Mitglieder des Preisgerichtes ergab folgendes Ergebniss: I. Preis mit 8 gegen 3 Stimmen Prof. Stier; II. Preis mit 6 gegen 5 Stimmen Th. Kösser; die übrigen Preise mit Stimmeneinheit in der bereits früher gegebenen Reihenfolge.
Die einzelnen 6 Entwürfe haben eine etwas eingehendere Beurtheilung gefunden. Ueber den diesem Berichte beigegebenen Entwurf des Hrn. O. Schmidt-Dresden bemerkt das Protokoll, derselbe zeige bei ähnlicher Lage der Hauptsäle, wie bei dem Stier’schen Entwurf, eine sehr klare Grundrissdisposition; die Kassenlokalitäten und Korridore entbehrten indess theilweise einer guten Beleuchtung. Das Aeussere steht in künstlerischer Beziehung auf einer sehr hohen Stufe, doch führe die Grösse des Gebäudes zu ästhetischen Bedenken und beeinflusse die Situirung desselben in höchst unvortheilhafter Weise.
Die von uns nicht getheilte Anerkennung des Entwurfs „Herzflamme“ „findet ihren Grund in der künstlerischen Qualität der Aussendurchbildung, während der Grundriss wegen Form und Lage der Säle zu mancherlei Bedenken Anlass giebt“. Bei einem Vergleich jedoch dieses Entwurfs z. B. mit den Entwürfen „hie gut teutsch“ und „beatus ille“, deren Grundrisslösungen Anerkennung finden, wird es nicht schwer sein zu entscheiden, welches die werthvollere Aussendurchbildung ist. Doch genug der Kritik, die sich trotz der Berücksichtigung alles „Menschlichen“ bei dem inrede stehenden Wettbewerb leider in so überreichem Maasse uns aufgedrängt hat. Es geht ein noch ungestilltes Sehnen nach Besserung durch die Gemüther aller jener, welche erkennen, dass die Entwicklung der neueren Baukunst. zusammenhängt mit einer vertiefteren und feinfühligeren Beurtheilung unserer architektonischen Wettbewerbe.
Diese Artikelserie erschien zuerst am 17.06., 27.06., 04.07. & 11.07.1896 in der Deutsche Bauzeitung, sie war gekennzeichnet mit „-H.-„.


















