Im Oktober d. J. hat unter fünf Hannover’schen Architekten ein engerer Wettbewerb statt gefunden, welcher die Bearbeitung von Entwürfen zu einem in dieser Stadt zu errichtenden Geschäftshause für die Alters- und Invaliditäts-Versicherungs-Anstalt zur Aufgabe hatte. Zusammen mit dem Architekten Hrn. Wilh. Hauers aus Hamburg war der Unterzeichnete als Preisrichter berufen worden; es erhielt unter den von den fünf Architekten W. Kayser, C. Grelle, G. Heine, H. Lorenz und H. Siepmann eingereichten Arbeiten diejenige des letztgenannten den Preis.
Die ganze Aufgabe dürfte um so eher eine etwas eingehendere Besprechung verdienen, als es sich dabei um eine Gebäudegattung handelt, welche eigenartigen, bisher in dieser Weise noch nicht gestellten Anforderungen zu genügen hat, sonach fast als eine neue bezeichnet werden kann und die ferner die Architektenschaft demnächst wohl noch öfter beschäftigen wird. Keine der zahlreichen Anstalten, welche über das Deutsche Reich vertheilt, die Geschäfte der bezüglichen gesetzlichen Neueinrichtungen zu besorgen haben, wird sich in einiger Zeit der Errichtung eines eigenen Gebäudes entziehen können und da die für ein solches Haus aufzuwendende Summe sich immerhin auf 6-700 000 M. ausschl. des Bauplatzes belaufen dürfte, so ist es klar, welche umfangreiche Thätigkeit auch für unser Fach als unmittelbare Folge jenes Gesetzes sich ergiebt. M. W. sind bis jetzt entsprechende Gebäude nur in Lübeck und Merseburg errichtet, für Breslau geplant.
Dies ist ein historischer Text, welcher nicht geändert wurde, um seine Authentizität nicht zu gefährden. Bitte beachten Sie, dass z. B. technische, wissenschaftliche oder juristische Aussagen überholt sein können. Farbige Bilder sind i. d. R. Beispielbilder oder nachcolorierte Bilder, welche ursprünglich in schwarz/weiß vorlagen. Bei diesen Bildern kann nicht von einer historisch korrekten Farbechtheit ausgegangen werden. Darüber hinaus gibt der Artikel die Sprache seiner Zeit wieder, unabhängig davon, ob diese heute als politisch oder inhaltlich korrekt eingestuft würde. Lokalgeschichte.de gibt die Texte (zu denen i. d. R. auch die Bildunterschriften gehören) unverändert wieder. Das bedeutet jedoch nicht, dass die darin erklärten Aussagen oder Ausdruckweisen von Lokalgeschichte.de inhaltlich geteilt werden.
Es mögen hier zuvörderst einige Erläuterungen über die Art des Geschäftsverkehrs, wie er sich in einem solchen Gebäude abwickelt, vorangeschickt werden, da sich hieraus am besten das Wesen der Aufgabe erkennen lässt und der Werth der Lösung, welche sie in dem vorliegenden Falle gefunden hat, beurtheilt zu werden vermag.
Bekanntlich beruht das Verfahren bei Einziehung der Beiträge für die Alters- und Invaliditäts-Versicherungsanstalten von den einzelnen Versicherten auf sogenannten Quittungskarten, welche mit einer Anzahl von Feldern, welche je einer Woche entsprechen, bedruckt sind und mit Marken in Geldeswerth nach Maassgabe der geleisteten Arbeitszeit beklebt werden. Die Marken werden von den Orts-(Polizei-)Behörden ausgegeben und sind auf Jahres-Dauer berechnet; wenn die Karte gefüllt ist, wird sie von der betreffenden Behörde eingezogen, welche die Ausstellung einer neuen Karte veranlasst und so fort, bis zum Eintritt des 70. Lebensjahres, mit welchem die Auszahlung der Altersrenten erfolgt, oder bis zum Eintritt der Invalidität. Die Ortsbehörden geben die gefüllten Quittungskarten in grösseren Posten, möglichst in Ballen nicht unter 1000 Stück an die Alters- und Invaliditäts-Versicherungs-Anstalt, zu deren Bezirk sie gehören, ab und es bilden diese Karten für die Anstalt nunmehr das Aktenmaterial für die Geldberechnung sowohl der eingezahlten Beträge, wie der zu zahlenden Renten. Es müssen diese Karten daher übersichtlich in einer grossen Registratur untergebracht werden. Für die Ordnung in derselben sind verschiedene Systeme in Anregung gebracht worden, namentlich hat man mehrfach die Karten alphabetisch nach den Namen der Inhaber geordnet. Dies Verfahren führt indessen den Nachtheil mit sich, dass bei der grossen Menge gleichlautender Namen, bei welchen häufig auch dieselben Vornamen wiederkehren, eine Uebersichtlichkeit und gleichmässige Vertheilung sehr erschwert wird. Für die Hamnover’sche Anstalt, ist auf Veranlassung des Vorstandes derselben, des Herrn Landesrath Dr. Liebrecht, die Ordnung der Akten nach Geburtstagen durchgeführt, wobei sich die vorerwähnten Uebelstände vermeiden liessen. Für jedes Jahr ist alsdann ein Repositorium von 360 Fächern angelegt, welches eine Länge von 6 m und eine Höhe von 3,60 m beansprucht. Da die Akten für eine Zeitdauer von 64 Jahren aufbewahrt werden sollen, ist mindestens eine Länge von 6x 64=384 m an Repositorien erforderlich. Um indessen bei einem etwaigen neuen Anwachsen der Versicherungspflichtigen genügend Platz zu haben, war für das neue Gebäude die doppelte Anzahl von Repositorien also 2x 384 = 768 m verlangt. Es setzt dies natürlich bei guter Beleuchtung und bei hinreichend bequemen Gängen zwischen den Repositorien sehr grosse Räume voraus. Bei den meisten Plänen waren nicht unter 1000 qm hierfür vorgesehen, im Siepmann’schen 1300 qm. Es wird natürlich sehr schwierig sein, derartige Räume mit jener unbedingten Feuersicherheit zu errichten, welche sie als Aufbewahrungsort von Dokumenten, auf denen die ganze geschäftliche Grundlage des Unternehmens beruht, eigentlich erfordern. Trotzdem ist dieser Versuch bei einer der bereits errichteten Anstalten, derjenigen in Merseburg, gemacht worden. Dort sind auch die Quittungskarten in eisernen Kästen untergebracht, deren jeder eine Anzahl Fächer enthält. Diese in Rollen aufgehängte Küsten werden in eiserne Repositorien möglichst dicht schliessend seitwärts eingeschoben.
In Hannover ist von solchen Sicherheitsvorkehrungen, welche die Benutzung des Kartenmaterials erheblich erschweren, abgesehen worden, die offenen Repositorien sind aus Holz hergestellt und nur für die Decke der Registraturräume sind feuersichere Konstruktionen verlangt. Es ist hier die Einrichtung getroffen, dass ein besonderes Kartenregister geführt wird, welches den Inhalt der Akten in kürzester Form wiedergiebt, und aus welchem auch bei Verlust derselben alles Erforderliche sofort zu ermitteln ist. Diese Kartenregister bilden die eigentlichen Dokumente und für sie ist daher ein grösserer, mit allen erforderlichen Sicherheitsvorkehrungen versehener Tresor nothwendig; derselbe dient auch zugleich zur Aufbewahrung der gleichfalls als Dokumente zu betrachtenden Kartenregister, welche über die im Rentengenuss befindlichen Personen geführt werden, Verlangt ist ein Raum von 36 qm, Für die Bearbeitung der eingehenden Quittungskarten ist eine grössere Zahl von Beamten erforderlich, deren Zimmer sich in möglichster Nähe der Registratur befinden müssen. Für Hannover sind 400 Beamte verlangt, die etwa zu je 4 in einem Zimmer arbeiten. Für das Auspacken und Sortiren der Kartenballen sind grössere Räume nöthig, die am besten dicht neben einer Einfahrt liegen. Nebentreppen und Aufzüge müssen die einzelnen Geschosse der Registratur unter sich und mit den Sortirräumen verbinden.
Da die Anstalt ihr Vermögen nicht selbst verwaltet, dasselbe vielmehr bei der Seehandlung in Berlin angelegt ist, so ist nur ein kleiner Kassenraum erforderlich, in welchem ein Verkehr des Publikums nicht stattfindet; jedoch muss sich in der Nähe desselben der obenerwähnte Tresor, sowie eine Buchhalterei für 12 Personen befinden. Wie jede andere Versicherungsanstalt bedarf auch diese der statistischen Nachweise und Zusammenstellungen. Zur Bearbeitung des Materials nach dieser Richtung sind etwa 20 Beamte, je zwei in einem Zimmer arbeitend, beschäftigt; hierzu treten noch Zimmer für den ersten und zweiten Vorsitzenden, 6 Zimmer für 12 Sekretäre, 4 Kanzleiräume für 12 Schreiber, sowie 2 Räume für den Staatskommissar. Ein Saal für Schiedsgerichte mit Warte- und Berathungszimmer, sowie ein grösserer Saal für 50 Personen für die Sitzungen des Ausschusses vervollständigen die Bedürfnisse des, wie ersichtlich, sehr umfangreichen Verwaltungskörpers. Im vorliegenden Falle war auch für den ersten Vorsitzenden eine grössere Dienstwohnung im Gebäude verlangt.
Zur Verfügung stand ein nicht eben allzu günstiger Bauplatz, ein ziemlich spitz zulaufendes Eckgrundstück. Die Erwerbung eines Nachbargrundstückes ist vorgesehen, der Entwurf sollte so angelegt werden, dass eine Vergrösserung des Gebäudes nach dieser Richtung ohne Schwierigkeit erfolgen könne.
Den im Vorstehenden entwickelten Bedürfnissen und Anforderungen der Anstalt entsprach der Siepmann’sche Entwurf, von welchem wir 2 Grundrisse und 1 Ansicht geben, soweit, dass demselben der ausgesetzte Preis von 1000 M. (ausser 500 M. Entschädigung, welche jedem Bewerber zugebilligt war) ertheilt und unter unwesentlichen Abänderungen zur Ausführung angenommen werden konnte. Besonders hervorgehoben wurde in der Beurtheilung des Preisgerichtes die zweckmässige Ausnutzung des Bauplatzes, die klare und übersichtliche Vertheilung der Geschäfts-, Arbeits- und Wohnräume, sowie die Anordnung der Treppen und Verbindungsgänge. Als hervorragend gut gelöst ist die Anlage der Registratur und ihrer Nebenräume zu betrachten. Die meisten der übrigen Entwürfe, unter denen übrigens die Arbeiten von Heine und Lorenz als die nächstbesten hervorzuheben sind, zeigten grade inbezug auf diesen wichtigsten Theil des Gebäudes mehrfache Mängel.
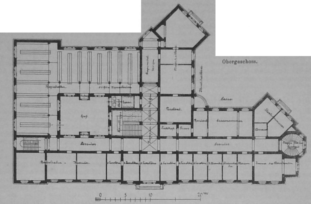
Von einem an der Hauptstrasse belegenen Eingange liegt linker Hand die Gebäudemasse der Registratur in 4 Geschossen um einen grösseren Innenhof geordnet. Dieser Hof dient im Kellergeschoss als Sortirraum und ist zu diesem Zwecke in Erdgeschosshöhe mit einem Glasdach geschlossen. Jedem Geschosse der Registraturräume ist an der Strassenseite die entsprechende Anzahl Beamtenzimmer angefügt; die verlangten Verbindungen durch Treppen und Aufzüge sind sehr zweckentsprechend angelegt, ebenso wie die im Erdgeschosse befindliche Kasse und Buchhalterei nebst dem grossen Tresor. Das Schiedsgericht befindet sich ebenfalls im Erdgeschoss in der Axe des Einganges.
Der zur rechten Seite den Grundstücksgrenzen entsprechend dreiseitig angeordnete Theil des Gebäudes enthält im Erdgeschoss die Dienstwohnung mit besonderem Eingang von der Ecke her. Da das Grundstück fast ganz bebaut werden musste, ist gegen die Seitenstrasse ein Hofraum als kleiner Ziergarten belassen, um dadurch für die Wohnung eine gewisse Annehmlichkeit zu gewinnen. In den oberen Geschossen sind die Vorstandszimmer mit Kanzlei und Sekretariat, sowie das statistische Büreau untergebracht. Die Art der späteren Erweiterung ist auf dem Grundrisse angegeben. Die Ansichten sollen ohne besonderen Aufwand, in Haustein – Gliederungen und Ziegelverblendung für die Flächen, in einfachen Renaissanceformen durchgeführt werden. Der gothische Baustil war, einem Wunsche des Vorsitzenden entsprechend, im Programme ausdrücklich ausgeschlossen.
Dieser Artikel von H. Stier erschien zuerst 1891 in der Deutschen Bauzeitung.






